Продажа квартиры ЖК Well Home , Щирецкая ул., 28, Львов

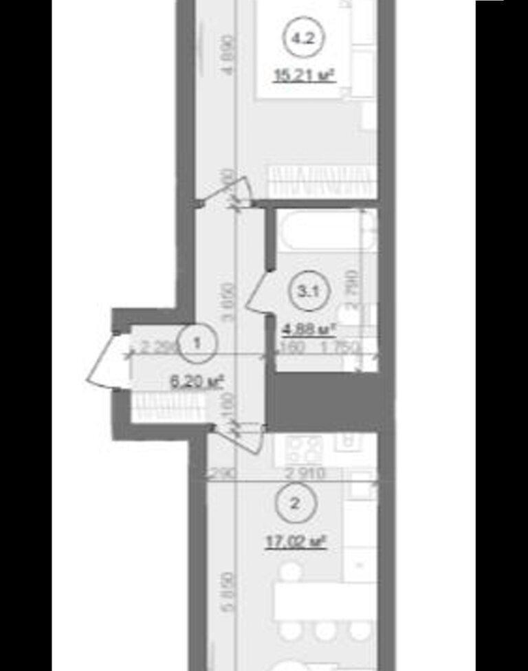
1 комн. · 7/7 эт. · 44.50/15.21/17.02 м²

79 000 $
Номер: SF-3-066-802

Это предложение уже закрыто

Информация о предложении

Продается 1-комнатная квартира без отделочных работ в новом ЖК Well Home. Площадь квартиры 44,50 м². Расположена квартира во Львове, в районе Скниловок, по улице Щирецкой.
Жилая площадь 15,21 м², кухня 17,02 м².
Восточная сторона, окна выходят во внутренний двор и снаружи.

В квартире индивидуальное отопление, двухконтурный котел 24кВ, радиаторы и черновая стяжка в спальне. Качественная бронированная металлическая дверь, металлопластиковые окна 6-ти камерный профиль, двухкамерный стеклопакет. Заведен свет, вода, интернет, установлены все счетчики.
Квартира очень просторная и светлая с балконом.

Не упускайте возможность стать владельцем квартиры мечты! Позвоните нам сейчас для заказа просмотра и получения более подробной информации.

  • Цена: 79 000 $
  • Цена за кв. метр: ≈1 775 $
  • Ремонт: без отделочных работ
  • Класс жилья: комфорт
  • Типовая планировка: нестандартная планировка
  • Число комнат: 1 комн.
  • Площадь общая, м²: 44.50
  • Площадь жилая, м²: 15.21
  • Площадь кухни, м²: 17.02
  • Этаж: 7/7
  • Год постройки: 2021-2025, новострой
  • Санузлов: 1
  • Балконов: 1
  • Район города: Зализнычный район , Скниловок
  • Вид недвижимости изолированная

Коммуникации

Вода:
центральная;
Газ:
есть;
Отопление:
двуконтурный котел;
Счетчики:
холодная вода, газ;

Параметры объекта

Материал стен:
шлакоблок;

Прочее

Дата обновления информации:
20.08.2025 12:14;

Наши сотрудники на связи

Photo

АН Valion

С удовольствием ответим на вопросы с 9-00 до 18-00 в будние дни, с 10-00 до 16-00 в субботу.

+380 (50) 450-30-82