Продажа квартиры Стрыйская ул. , 115, Львов

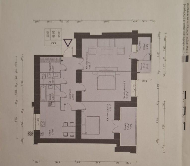
3 комн. · 2/8 эт. · 90.70/75/14 м²

170 000 $
Номер: SF-3-154-743

Информация о предложении

Продается 3-комнатная квартира в современном ЖК «Цветы Львова» на ул. Стрыйская, 115 – идеальный выбор для тех, кто ценит качество, комфорт!
Толщина стен 65см кирпич+10см минвата, - таких домов уже не строят!!!
Развитая инфраструктура (детские и спортивные площадки, теннисный корт, футбольное, волейбольное поле, магазины, кафе, остановка транспорта у дома, большой охраняемый паркинг)
Сделан дорогостоящий ремонт в классическом стиле, дубовая дверь и кухня, дубовый паркет, мебель из натурального дерева, качественная бытовая техника, посудомоечная машина новая.
Теплый пол (гардеробный, ванная, туалет, кухня).
Есть большая лоджия из спальни и остекленный балкон из первой комнаты которого дверь выходит на открытый балкончик.
Новостройка сдана и заселена.
Также сзади дома есть классный каменный гараж с подвалом в гаражном кооперативе с возможностью заряжать электромобиль по цене электроэнергии как в обычных частных домах и квартирах!
Жилой комплекс расположен в зеленом экологически чистом районе, но вместе с тем имеет прекрасное транспортное сообщение с другими районами Львова. Путь на авто до центра города занимает около 10 минут, рядом также находятся несколько остановок общественного транспорта. В округе комплекса расположены парки и лесопарковые зоны для прогулок и пикников. В 5 минутах пешком - Львовский ипподром, где вы сможете научиться ездить верхом, на территории комплекса есть футбольное поле, теннисные корты, волейбольное поле.
Через несколько минут на авто вы доедете до большого ТРЦ King Cross Leopolis, в котором открыты гипермаркет «Ашан», брендовые магазины, рестораны, кинотеатр, ледовый каток и детская игровая площадка. Там же расположен строительный гипермаркет «Эпицентр К»
Очень хороший вариант для личного проживания.
Развит район с необходимой инфрастроктурой.

  • Цена: 170 000 $
  • Цена за кв. метр: ≈1 874 $
  • Ремонт: авторский дизайн
  • Класс жилья: элит
  • Число комнат: 3 комн.
  • Число спален: 2
  • Площадь общая, м²: 90.70
  • Площадь жилая, м²: 75
  • Площадь кухни, м²: 14
  • Этаж: 2/8
  • Год постройки: 2021-2025, новострой
  • Санузлов: 1
  • Балконов: 1
  • Район города: Сиховский район , Боднаровка
  • Вид недвижимости изолированная

Коммуникации

Вода:
центральная;
Газ:
есть;
Отопление:
автономное, газовое;

Параметры объекта

Материал стен:
кирпич;

Прочее

Дата обновления информации:
16.02.2026 12:33;

Наши сотрудники на связи

Photo

АН Valion

С удовольствием ответим на вопросы с 9-00 до 18-00 в будние дни, с 10-00 до 16-00 в субботу.

+380 (50) 450-30-82