Продажа квартиры ЖК Sota Duet , Любинская ул., 6, Львов

2 комн. · 6/8 эт. · 70 м²

2 350 $/м²
Номер: SF-3-260-334

Информация о предложении

Продажа

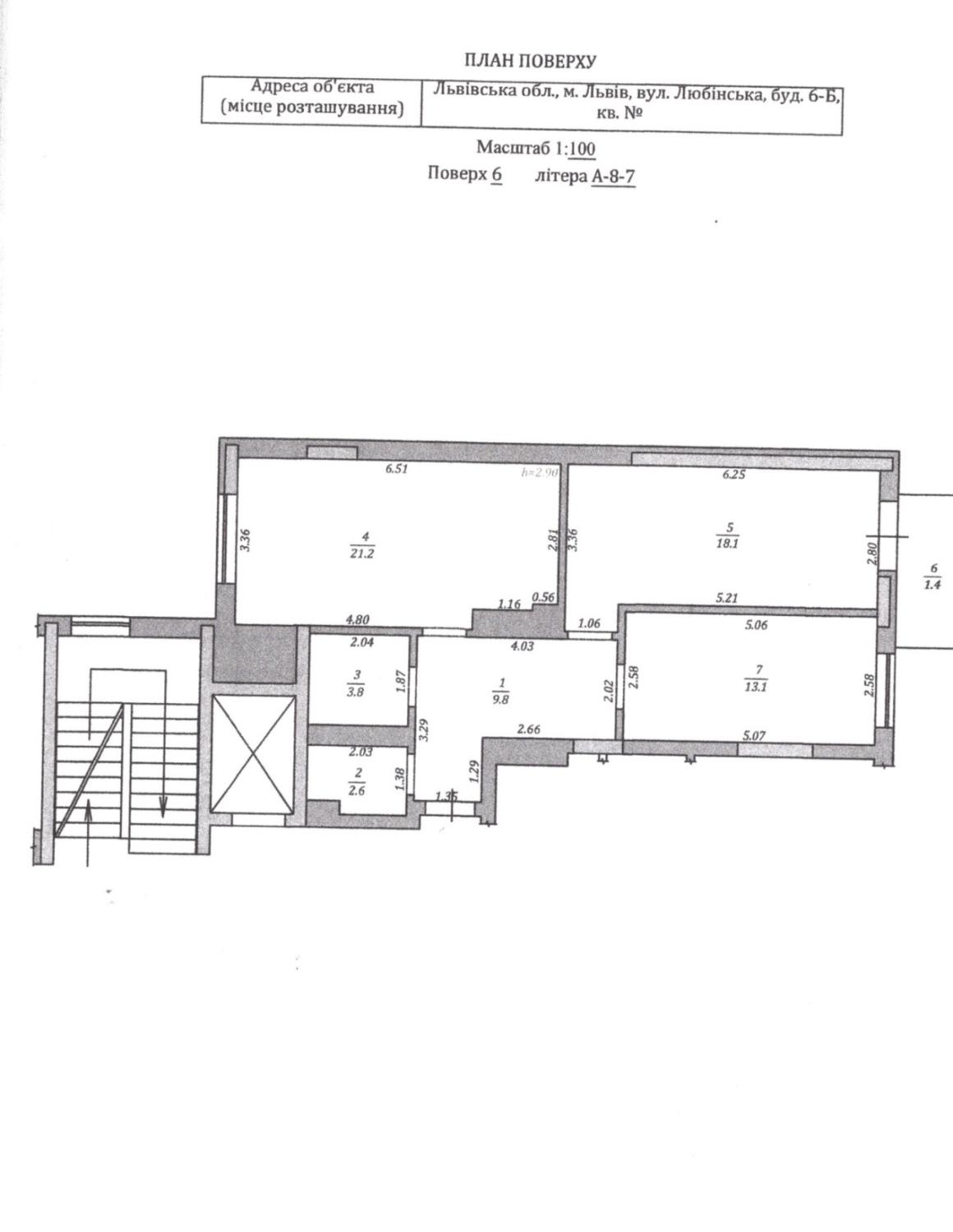
г. Львов, ул. Любинская, 6-б

Этаж 6/7

Площадь – 70,0 м.кв.

Цена – 2250 долл./кв.м.



Новостройка, современный, качественный ремонт, полностью оборудованы кухня и санузел, балкон, шкаф-купе, гардероб, теплый пол+батереи, полное кондиционирование, бесшумный лифт KONE, круглосуточное наблюдение, дизайнерский парадный холл, подземный и наземный паркинги.

Прекрасный вид на центр Львова. Прекрасное транспортное сообщение.

Развитая инфраструктура – ТЦ "Сундук", "Близенько", Пригородный вокзал, рынок, школа, сад, магазины, Sport Life, парк.

  • Цена: ≈164 500 $
  • Цена за кв. метр: 2 350 $
  • Ремонт: евроремонт
  • Класс жилья: бизнес
  • Типовая планировка: нестандартная планировка
  • Схема комнат: раздельная
  • Число комнат: 2 комн.
  • Число спален: 1
  • Площадь общая, м²: 70
  • Площадь кухни, м²: 21
  • Этаж: 6/8
  • Год постройки: 2021-2025, новострой
  • Санузлов: 1
  • Балконов: 1
  • Район города: Франковский район , Богдановка (Франковский)
  • Вид недвижимости изолированная

Коммуникации

Вода:
центральная;
Отопление:
центральное;

Прочее

Дата обновления информации:
02.04.2026 14:09;

Наши сотрудники на связи

Photo

АН Valion

С удовольствием ответим на вопросы с 9-00 до 18-00 в будние дни, с 10-00 до 16-00 в субботу.

+380 (50) 450-30-82