Продажа квартиры ЖК Q-7 Quoroom Ice , Морозная ул., 29, Львов

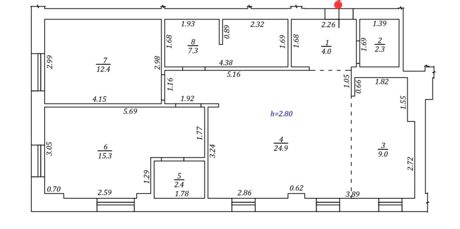
2 комн. · 2/7 эт. · 77.60 м²

109 000 $
Номер: SF-3-267-636

Информация о предложении

Продаю 2-х комнатную квартиру в новом жилом комплексе Q-7 Quoroom Ice, площадью 77.6 м², без внутренних работ. Расположенная на улице Морозная, район Сихов – престижное место для комфортной жизни.

Квартира на 2 этаже 7-этажного дома клубного типа (всего 22-квартира). Кухня 9м.

Дом сдан.

Наполнение квартиры:
Наружные стены – керамический блок и перегородки-кирпич с штукатуркой;
- межквартирные стены изолированные минватой (кирпич+минвата+кирпич);
- индивидуальное отопление, газовый котел, стальные радиаторы отопления;
- цементно-песчаная стяжка на полу;
- окна панорамные: 2-камерный стеклопакет-4,4см, 6-камерный профиль(Германия);
- входная бронированная дверь, сертифицированная;
- утепление фасада-15см, минвата совмещена с пенопластом;
- счетчики учета воды(холодная), газа и электроэнергии;
- электроснабжение от счетчика до электрического щитка квартиры;
- высота потолков-2,7м от цементной стяжки.
Не упускайте возможность приобрести идеальное жилье в наиболее популярном районе Львова!

  • Цена: 109 000 $
  • Цена за кв. метр: ≈1 405 $
  • Ремонт: без внутренних работ
  • Класс жилья: элит
  • Типовая планировка: нестандартная планировка
  • Число комнат: 2 комн.
  • Число спален: 1
  • Площадь общая, м²: 77.60
  • Площадь кухни, м²: 9
  • Этаж: 2/7
  • Год постройки: 2021-2025
  • Санузлов: 1
  • Район города: Сиховский район , Сыхов
  • Вид недвижимости изолированная

Коммуникации

Вода:
центральная;
Газ:
есть;
Отопление:
центральное, автономное, газовое;
Счетчики:
холодная вода, газ;

Прочее

Дата обновления информации:
25.02.2026 11:47;

Наши сотрудники на связи

Photo

АН Valion

С удовольствием ответим на вопросы с 9-00 до 18-00 в будние дни, с 10-00 до 16-00 в субботу.

+380 (50) 450-30-82