Продажа квартиры ЖК ул. Вулецкая , Освободительная ул., 43, Львов

1 комн. · 4/5 эт. · 57.30 м²

67 000 $
Номер: SF-3-274-637

Информация о предложении

Предлагаем современную квартиру комфорт-класса в уютном районе Львов, микрорайон Сихов.

Локация – ул. Вулецко
Дом малоэтажный, что обеспечивает покой и приватность.

Основные характеристики:
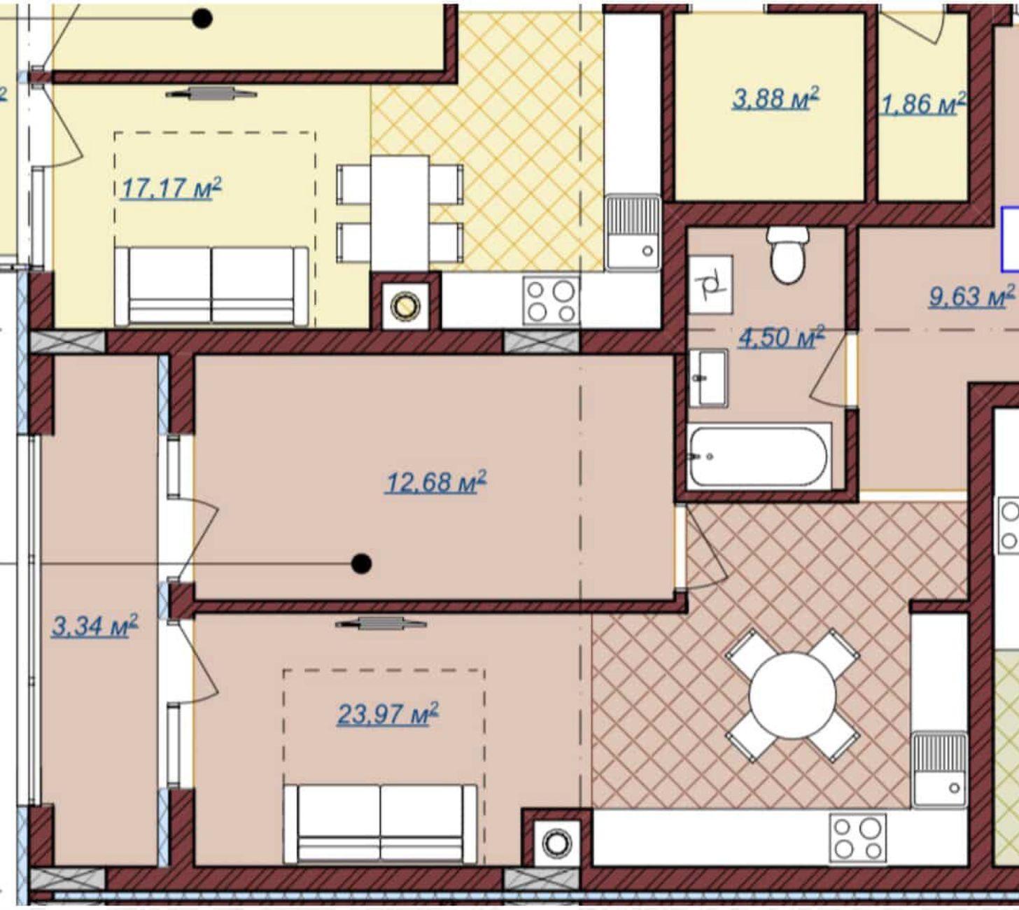
Общая площадь - 57,30 м².
Этаж — 4 из 5
Просторная кухня-студия 24,5 м²
Новостройка
Состояние – без внутренних работ (возможность реализовать собственный дизайн-проект)
Класс жилья – комфорт
Застройщик Новый Львов
Благодаря удачной планировке квартира легко зонируется: можно обустроить отдельную спальню, просторную гостиную и предусмотреть гардеробную.

Район с развитой инфраструктурой, удобным проездом и комфортной средой для жизни. Оптимальное расположение ул. Вулецкий объединяет тишину и близость ко всему необходимому.

Прекрасный вариант как для собственного проживания, так и для инвестиции.

Звоните, чтобы договориться о просмотре!

  • Цена: 67 000 $
  • Цена за кв. метр: ≈1 169 $
  • Ремонт: без внутренних работ
  • Класс жилья: комфорт
  • Типовая планировка: нестандартная планировка
  • Число комнат: 1 комн.
  • Площадь общая, м²: 57.30
  • Площадь кухни, м²: 24.50
  • Этаж: 4/5
  • Год постройки: 2021-2025, новострой
  • Санузлов: 1
  • Район города: Лычаковский район , Большие Кривчицы
  • Вид недвижимости изолированная

Коммуникации

Вода:
центральная;
Газ:
есть;
Отопление:
автономное, газовое;
Счетчики:
газ;

Параметры объекта

Материал стен:
монолито-каркас;

Прочее

Дата обновления информации:
03.04.2026 11:19;

Наши сотрудники на связи

Photo

АН Valion

С удовольствием ответим на вопросы с 9-00 до 18-00 в будние дни, с 10-00 до 16-00 в субботу.

+380 (50) 450-30-82