Продажа квартиры ЖК Washington City , Вашингтона Дж. ул., 1, Львов

1 комн. · 7/16 эт. · 43.30 м²

75 000 $
Номер: SF-3-283-697

Информация о предложении

Продается просторная 1-комнатная квартира в новостройке комфорт-класса Washington City.

Преимущества квартиры:
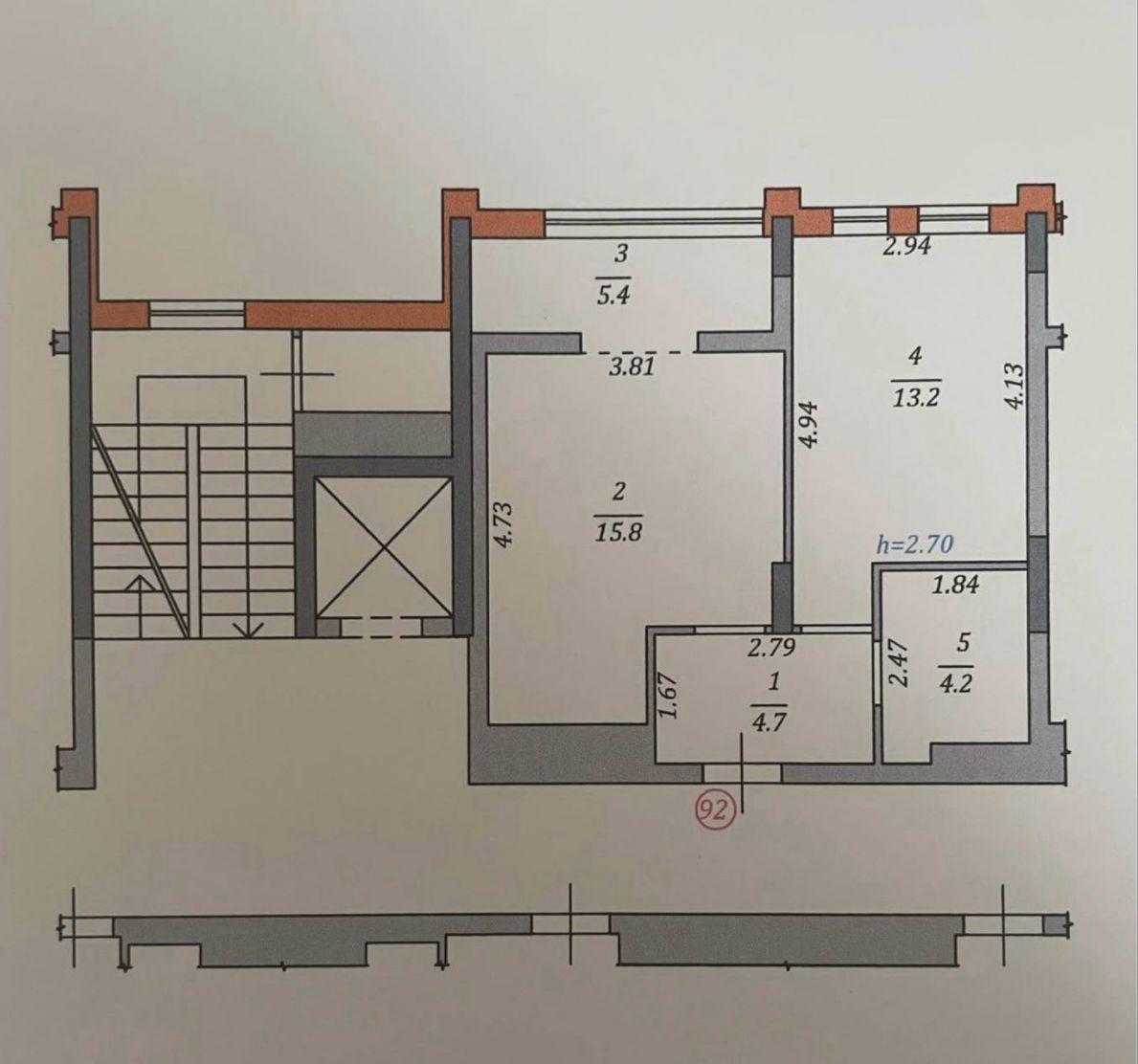
Нестандартная, интересная планировка
Просторная кухня – 21,50 м² (почти как отдельная комната!)
Комфортный 7-й этаж
Новостройка комфорт-класса
Квартира без внутренних ремонтных работ – идеальная возможность сделать дизайн полностью под себя.

Современный жилой комплекс с развитой инфраструктурой, удобным соединением и всем необходимым рядом для комфортной жизни.

Прекрасный вариант как для собственного проживания, так и для инвестиции в аренду.

Не упускайте шанс приобрести квартиру в новом доме — звоните и договаривайтесь об осмотре!

  • Цена: 75 000 $
  • Цена за кв. метр: ≈1 732 $
  • Ремонт: без внутренних работ
  • Класс жилья: комфорт
  • Типовая планировка: нестандартная планировка
  • Схема комнат: раздельная
  • Число комнат: 1 комн.
  • Площадь общая, м²: 43.30
  • Площадь кухни, м²: 21.50
  • Этаж: 7/16
  • Год постройки: 2021-2025, новострой
  • Санузлов: 1
  • Район города: Сиховский район , Сыхов
  • Вид недвижимости изолированная

Коммуникации

Вода:
центральная;
Газ:
есть;
Отопление:
автономное, газовое;

Параметры объекта

Материал стен:
кирпич;

Прочее

Дата обновления информации:
26.03.2026 12:02;

Наши сотрудники на связи

Photo

АН Valion

С удовольствием ответим на вопросы с 9-00 до 18-00 в будние дни, с 10-00 до 16-00 в субботу.

+380 (50) 450-30-82