Продажа квартиры ЖК Шенген , Железнодорожная ул. , 7, Львов

1 комн. · 1/12 эт. · 41.98 м²

60 871 $
Номер: SF-3-296-813

Информация о предложении

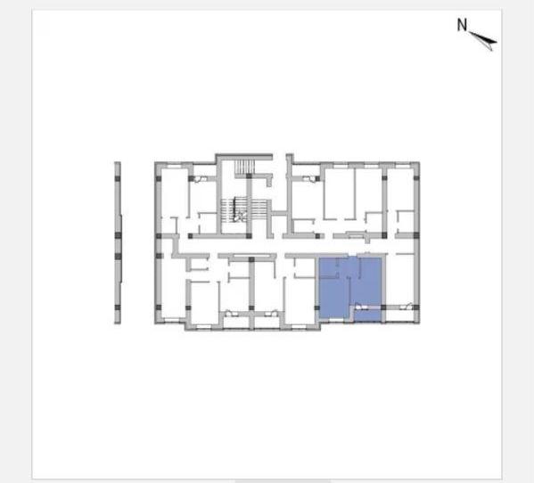
Продается 1-комнатная квартира в новостройке ЖК Шенген, 41.98 м², без внутренних ремонтных работ.
Квартира имеет нестандартную планировку, кухня 14.95 м².
Расположена квартира на первом этаже 12-этажного дома комфорт-класса по улице Железнодорожная, Привокзальная, г. Львов.
Не упускайте возможности стать владельцем этой квартиры в новом жилом комплексе!
Звоните!

  • Цена: 60 871 $
  • Цена за кв. метр: ≈1 450 $
  • Ремонт: без внутренних работ
  • Класс жилья: комфорт
  • Типовая планировка: нестандартная планировка
  • Схема комнат: раздельная
  • Число комнат: 1 комн.
  • Площадь общая, м²: 41.98
  • Площадь кухни, м²: 14.95
  • Этаж: 1/12
  • Год постройки: 2021-2025, новострой
  • Санузлов: 1
  • Балконов: 1
  • Район города: Зализнычный район , Привокзальная
  • Вид недвижимости изолированная

Коммуникации

Вода:
центральная;
Газ:
есть;
Отопление:
автономное;

Параметры объекта

Материал стен:
кирпич;

Прочее

Дата обновления информации:
26.03.2026 14:59;

Наши сотрудники на связи

Photo

АН Valion

С удовольствием ответим на вопросы с 9-00 до 18-00 в будние дни, с 10-00 до 16-00 в субботу.

+380 (50) 450-30-82