Продажа квартиры Апарт-комплекс APART HALL , Трускавецкая ул. , 117, Львов

1 комн. · 10/10 эт. · 43 м²

45 000 $
Номер: SF-3-297-362

Информация о предложении

Продажа 1-комнатной квартиры в новостройке от застройщика Галжитлобуд

Продается квартира в новостройке в престижном районе города.

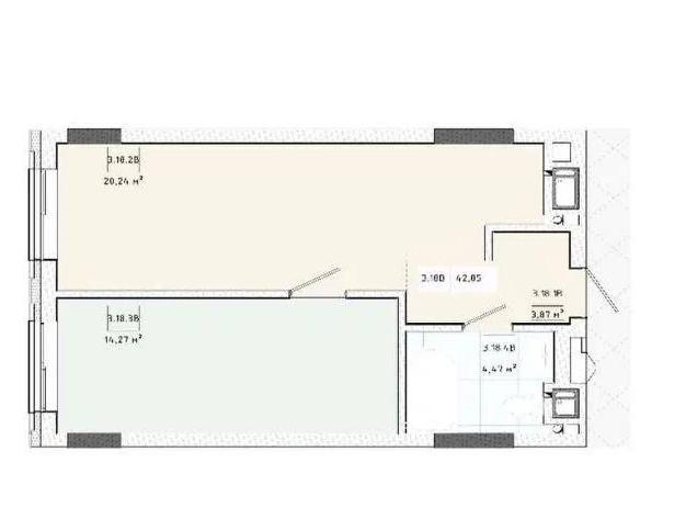
Характеристики:
• Площадь: 44 м²
• Этаж: 10 из 10
• Секция: С
• Сдача дома: 1 квартал 2027 года
• Состояние от застройщика:
• стяжка
• штукатурка
• установленные батареи
• подведены коммуникации

Дом уже с готовым фасадом, активно производятся внутренние работы.

Квартира подойдет как для собственного проживания, так и для инвестиции или сдачи в аренду.

  • Цена: 45 000 $
  • Цена за кв. метр: ≈1 047 $
  • Ремонт: без внутренних работ
  • Класс жилья: комфорт
  • Типовая планировка: нестандартная планировка
  • Число комнат: 1 комн.
  • Площадь общая, м²: 43
  • Площадь кухни, м²: 20.24
  • Этаж: 10/10
  • Год постройки: 2021-2025, новострой
  • Санузлов: 1
  • Район города: Франковский район , Южный массив
  • Вид недвижимости изолированная

Коммуникации

Вода:
центральная;
Газ:
есть;
Отопление:
автономное, газовое;
Счетчики:
газ;

Прочее

Дата обновления информации:
27.03.2026 16:02;

Наши сотрудники на связи

Photo

АН Valion

С удовольствием ответим на вопросы с 9-00 до 18-00 в будние дни, с 10-00 до 16-00 в субботу.

+380 (50) 450-30-82