Продажа квартиры ЖК Голосские утесы , Под Голоском ул. , 1, Львов

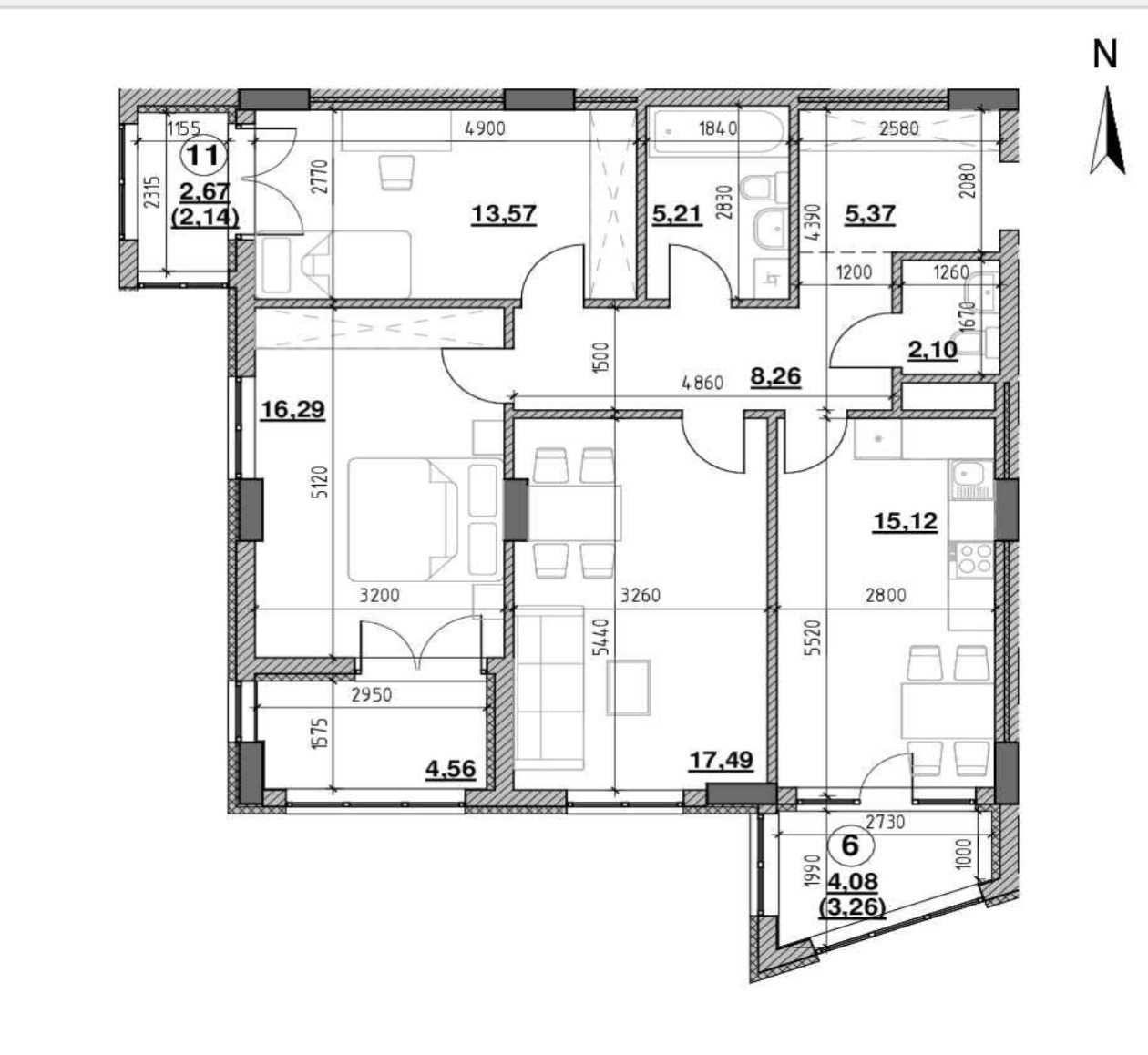
3 комн. · 9/10 эт. · 98.20 м²

147 300 $
Номер: SF-3-302-121

Информация о предложении

Продается квартира в новостройке ЖК "Голосские утесы" 3 комнаты, 98.20 м², без внутренних работ.
Расположена в Привокзальной зоне, ул. Под Голоском, Львов. Квартира находится на 9/10 этаже.
Планировка квартиры – нестандартная, кухня 15.12 м².
Жилье комфорт-класса.
Не упустите возможность купить эту квартиру в новом доме! Звоните!

  • Цена: 147 300 $
  • Цена за кв. метр: ≈1 500 $
  • Ремонт: без внутренних работ
  • Класс жилья: комфорт
  • Типовая планировка: нестандартная планировка
  • Схема комнат: раздельная
  • Число комнат: 3 комн.
  • Число спален: 2
  • Площадь общая, м²: 98.20
  • Площадь кухни, м²: 15.12
  • Этаж: 9/10
  • Год постройки: 2021-2025, новострой
  • Санузлов: 2
  • Район города: Зализнычный район , Привокзальная
  • Вид недвижимости изолированная

Коммуникации

Вода:
центральная;
Газ:
есть;
Отопление:
центральное, автономное;

Параметры объекта

Материал стен:
газоблок;

Прочее

Дата обновления информации:
19.05.2026 13:23;

Наши сотрудники на связи

Photo

АН Valion

С удовольствием ответим на вопросы с 9-00 до 18-00 в будние дни, с 10-00 до 16-00 в субботу.

+380 (50) 450-30-82