Продажа квартиры Сапиго Сергія вул., 6, Полтава

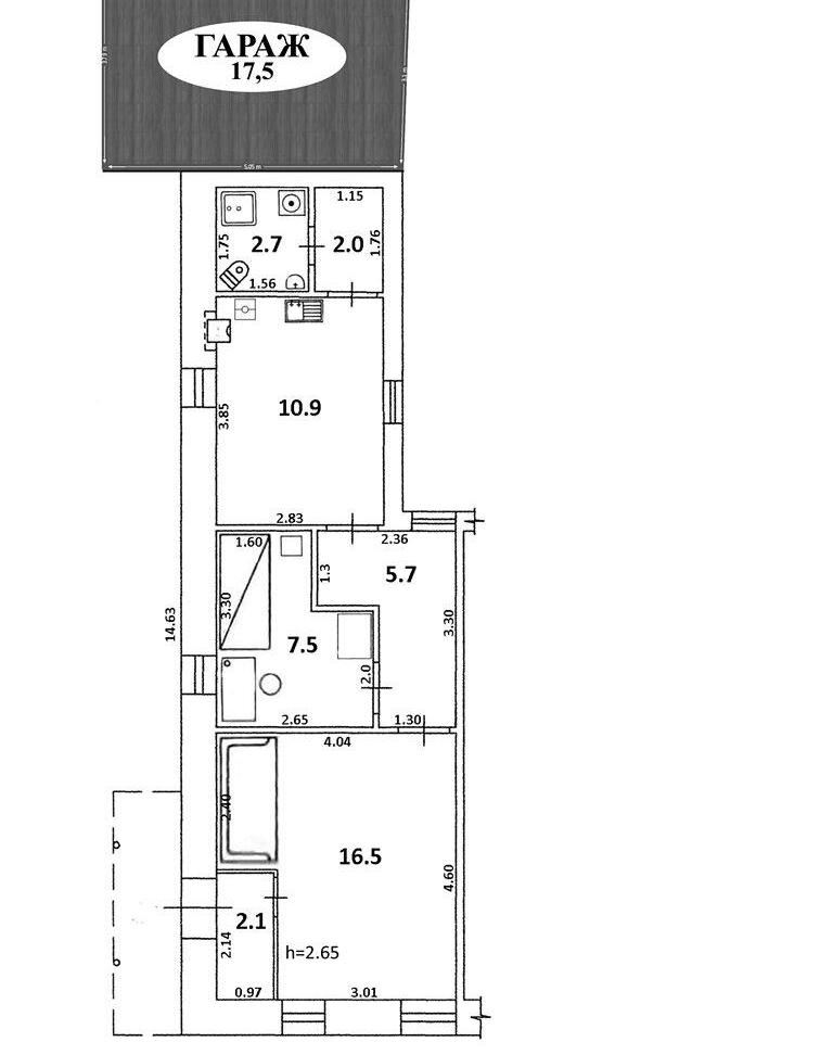
2 комн. · 1/5 эт. · 47.30/30/10.50 м²

35 000 $
Номер: SF-3-302-251

Информация о предложении

Продается квартира 2-х комнатная, 47.30 м² с косметическим ремонтом.
Расположена в Полтаве, на улице Сергея Сапыги, возле ДК ПТК. Квартира на первом этаже пятиэтажного дома.
Жилая площадь 30 м², кухня 10.50 м².
Не упускайте возможности стать владельцем этой уютной квартиры эконом-класса!
Звоните!

  • Цена: 35 000 $
  • Цена за кв. метр: ≈740 $
  • Ремонт: косметический ремонт
  • Класс жилья: эконом
  • Число комнат: 2 комн.
  • Число спален: 1
  • Площадь общая, м²: 47.30
  • Площадь жилая, м²: 30
  • Площадь кухни, м²: 10.50
  • Этаж: 1/5
  • Санузлов: 1
  • Район города: Киевский , ДК ПТК
  • Вид недвижимости изолированная

Коммуникации

Вода:
центральная;
Отопление:
центральное;

Прочее

Дата обновления информации:
08.04.2026 16:37;

Наши сотрудники на связи

Photo

АН Valion

С удовольствием ответим на вопросы с 9-00 до 18-00 в будние дни, с 10-00 до 16-00 в субботу.

+380 (50) 450-30-82