Продажа таунхауса Арктическая ул., Брюховичи поселок, Львовская область, Львовский район

3 комн. · 122/66/21.67 м² · 3 сот.

146 400 $
Номер: SH-214-739

Информация о предложении

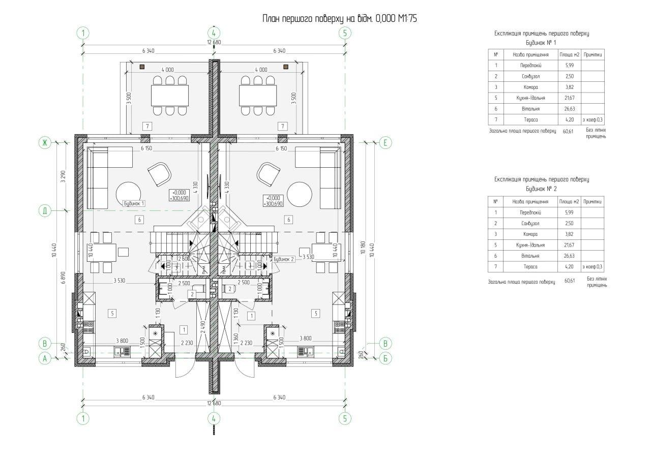
Новозбудовані дуплекси в Брюховичах, поряд з лісом, вул. Волошкова, НЕ проїздна. Завершення будівництва та здача в експлуатацію заплановано на квітень 2026 р. Площа будинків - 122 м² кожен та приватизовані ділянки по 0,003 Га. Висота стелі 1го поверху – 3,20 м², 2го поверху – 2,80 м², своє ізольоване горище. Наявні централізовані мережі, а саме: водопостачання, водовідведення, електроенергія (1 фаза, 8 кВт для кожного будинку окремо), газопостачання. Технічні характеристики: • Фундамент – монолітний (бетон М 350) та монолітна плита 18 см (бетон М 350) . • Цегла – керамоблок (М 150). • Перекриття 1-2 поверх - монолітне 16 см (бетон М 350) • Покрівля (дах)– металочерепиця. • Фасад утеплено пінопластом (15 см) та виконано з декоративної штукатурки. • Вікна та балконні/терасні двері енергозберігаючі, 6-ти камерні, з подвійним склопакетом (профіль фірми VEKA). З вітальні кожного будинку є вихід на задній двір з літньою терасою (з накриттям), а також наявні балкони на 2му поверсі. • Огорожа – металева, з відкатною брамою для заїзду авто та окремою хвірткою. • Наявні вентиляційні виходи під каміни. Планування будинків 1й поверх:  передпокій - 5,99 м² санвузол з коморою - 6,32 м²  кухня-їдальня – 21,67 м²  вітальня - 26,63 2й поверх:  сходова клітка-хол – 10,2 м²  мастер – бедрум – 16,18 м²  гардероб - 4,25 м²  спальня – 12,91 м²  спальня – 12,95 м²  санвузол - 6,83 м² Арктична вулиця,

  • Цена: 146 400 $
  • Цена за кв. метр: ≈1 200 $
  • Класс жилья: комфорт
  • Ремонт: без отделочных работ
  • Число комнат: 3 комн.
  • Число спален: 2
  • Площадь общая, м²: 122
  • Площадь жилая, м²: 66
  • Площадь кухни, м²: 21.67
  • Площадь участка, сот.: 3
  • Этажность: 2
  • Вид недвижимости таунхаус

Коммуникации

Вода:
центральная;
Газ:
есть;
Отопление:
автономное;
Канализация:
центральная;

Прочее

Дата обновления информации:
20.02.2026 14:04;

Наши сотрудники на связи

Photo

АН Valion

С удовольствием ответим на вопросы с 9-00 до 18-00 в будние дни, с 10-00 до 16-00 в субботу.

+380 (50) 450-30-82