Продажа дома Наварийская ул., Солонка, Львовская область, Львовский район

3 комн. · 129/44/31 м² · 2 сот.

750 $/м²
Номер: SH-216-938

Информация о предложении

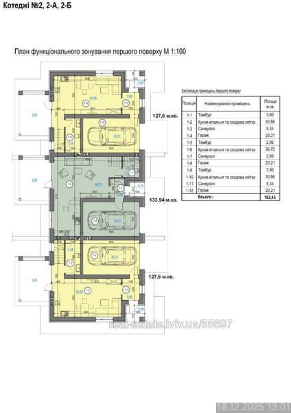
Стартував продаж нового котеджного містечка «Грін – Хілс» яке складається з 41-го котеджу, в с. Солонка по вул. Гулак – Артемовського бічна вул. Наварійська. Площа земельної ділянки містечка складає 1-н гектар, площа земельної ді-ки під котедж від 1,5 соток до 3-х соток, пл. котеджу від 128м.кв. до 135 м.кв., кожен котедж матиме гараж та відпочинкову зону, котеджі будуються з цегли керамічної півторачки М125 та матимуть 2-ва поверхи і панорамні вікна фірми WDS (6-ти камерне, 3-и скла, 2-ва енергозберігаючі), фасад утепляється пінопластом товщиною 100 мм. і оздоблюється декоративним тинкуванням типу «баранек» та «керамограніт». Дах: ПВХ-мембрана. Комунікації: газ, електрика 5 КВТ, вода та каналізація, ІО – газовий котел (не надається). Котеджі здаватимуться в 0-му циклі (вікна, двері, по штукатурені стіни, залита чорнова стяжка, підведенні комунікації) можливий ремонт під ключ. Котеджі трьох типів: 1. Спарка 4-ри котеджа, площа одного котеджу - 129 м.кв. 2. Спарка 3-ри котеджа, площа одного котеджу - 127,6; 134; 127,6 м.кв. 3. Спарка 2-ва котеджа , площа одного котеджу - 128,57 м.кв. Ціна: від 700 у.о. м.кв. Для перших покупців діють знижки! Отримати більш детальну інформацію та домовитись про огляд можна за телефонами. Наварійська,

  • Цена: ≈96 750 $
  • Цена за кв. метр: 750 $
  • Класс жилья: комфорт
  • Ремонт: без отделочных работ
  • Число комнат: 3 комн.
  • Число спален: 2
  • Площадь общая, м²: 129
  • Площадь жилая, м²: 44
  • Площадь кухни, м²: 31
  • Площадь участка, сот.: 2
  • Этажность: 2
  • Вид недвижимости целый дом

Коммуникации

Газ:
есть;

Параметры объекта

Материал стен:
кирпич;

Прочее

Дата обновления информации:
20.02.2026 10:53;

Наши сотрудники на связи

Photo

АН Valion

С удовольствием ответим на вопросы с 9-00 до 18-00 в будние дни, с 10-00 до 16-00 в субботу.

+380 (50) 450-30-82