Продаж квартири Олександрівська вул., 7, Вінниця

3 кімн. · 6/7 пов. · 99.70/50.80/28.10 м²

91 000 $
Номер: SF-3-157-136

Інформація щодо пропозиції

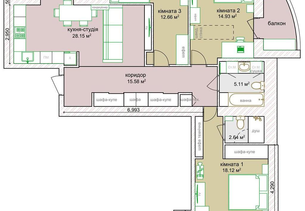
Продається простора 3-кімнатна квартира з кухнею-студією, мастер-спальнею, двома дитячими кімнатами та продуманим плануванням.

Зручності.
З кухні-студії є вихід на лоджію, також є ще один балкон в дитячій кімнаті. В квартиру заходить 14 кіловат електрики. Будинок дуже добре утеплений (60 см цегла+14см пінопласт). Гарний вид на місто. Тихий район, двір великий з сучасним майданчиком, поруч є два садочки, укритя, лікарня, магазини, ТЦ, велика кількість паркомісць та електрозарядки для авто, школа, зупинка громадського транспорту. В квартирі зробленно перепланування, знята стяжка в зоні коридор-кухня-студія-санвузли, для теплої підлоги (може бути, як водна так і електро). Є плани електрики та потолків під нове перепланування.

  • Ціна: 91 000 $
  • Ціна за кв. метр: ≈913 $
  • Ремонт: без внутрішніх робіт
  • Клас житла: комфорт
  • Кількість кімнат: 3
  • Кількість спалень: 2
  • Площа загальна, м²: 99.70
  • Площа житлова, м²: 50.80
  • Площа кухні, м²: 28.10
  • Поверх: 6/7
  • Рік будівництва: 2021-2025, новобуд
  • Санвузлів: 2
  • Балконів: 1
  • Район міста: Академічний

Комунікації

Вода:
центральна;
Опалення:
автономне, електричне;

Параметри об’єкта

Матеріал стін:
цегла;

Інше

Дата оновлення інформації:
08.12.2025 17:03;

Наші співробітники на зв’язку

Photo

АН Valion

Із задоволенням відповімо на питання з 9-00 до 18-00 у будні, з 10-00 до 16-00 у суботу.

+380 (50) 450-30-82