Продаж квартири Мікльоша Карла вул., Львів

2 кімн. · 9/10 пов. · 80.40 м²

72 000 $
Номер: SF-3-259-857

Інформація щодо пропозиції

Ціна!!! 900$.м
вул.Стрийська, навпроти Арени Львів

4 будинок на етапі будівництва, зведено,засклено
Здача на 4 кв 2025р

ЖК збудовано з керамоблоку
газове індивідуальне опалення,2-ф котел

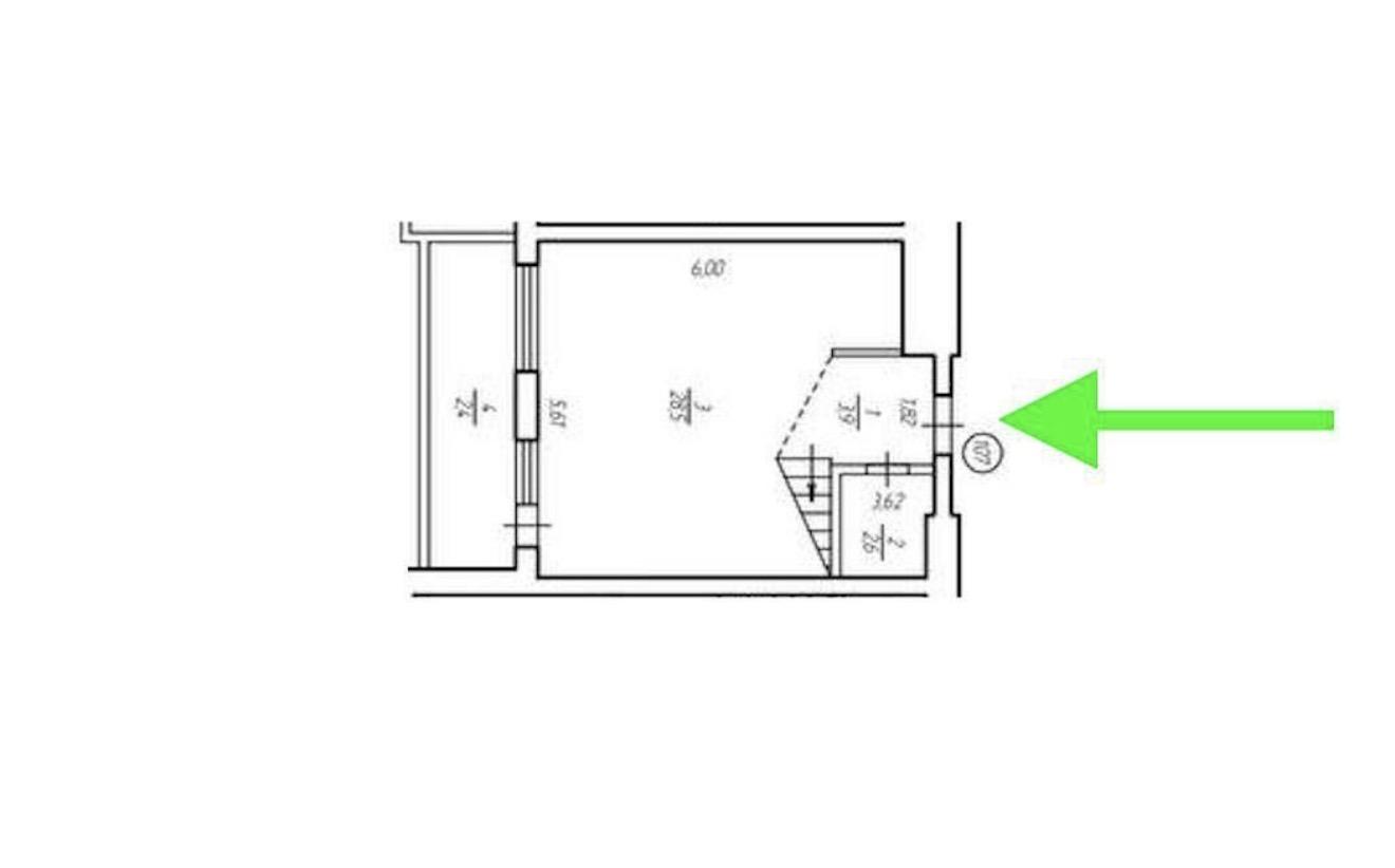
Гарне планування:
1 рівень - велика кухня-студія 26м з двома вікнами та терасою, гостьовий санвузол
2 рівень - гардероб, великий санвузол 12м, спальня 17м з двома вікнами та лоджією 2м (можна організувати дві ізольовані спальні)
Східна сторона горизонту

Гарна пропозиція для власного проживання,або для інвестиції

Телефонуйте! Можна оглянути

  • Ціна: 72 000 $
  • Ціна за кв. метр: ≈896 $
  • Ремонт: без оздоблювальних робіт
  • Клас житла: комфорт
  • Типове планування: нестандартне планування
  • Схема кімнат: багаторівнева
  • Кількість кімнат: 2
  • Кількість спалень: 1
  • Площа загальна, м²: 80.40
  • Площа кухні, м²: 29
  • Поверх: 9/10
  • Рік будівництва: після 2025, новобуд
  • Санвузлів: 2
  • Район міста: Сихівський район

Комунікації

Вода:
центральна;
Газ:
є;
Опалення:
автономне, газове;

Інше

Дата оновлення інформації:
28.12.2025 11:20;

Наші співробітники на зв’язку

Photo

АН Valion

Із задоволенням відповімо на питання з 9-00 до 18-00 у будні, з 10-00 до 16-00 у суботу.

+380 (50) 450-30-82