Продаж будинку Весняна вул., Сокільники, Львівська область, Львівський район

5 кімн. · 285 м² · 10 сот.

220 000 $
Номер: SH-217-475

Інформація щодо пропозиції

Продаж будинку с. Сокільники, два поверхи+цокольє газ, вода та світло 15 кВт добрий доїзд, вулиця замощена бруківкою, обжитий район, гарна локація, 0-цикл. Весняна вулиця,

  • Ціна: 220 000 $
  • Ціна за кв. метр: ≈772 $
  • Клас житла: комфорт
  • Ремонт: без оздоблювальних робіт
  • Кількість кімнат: 5 кімн.
  • Кількість спалень: 3
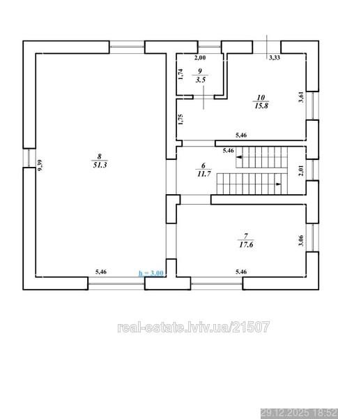
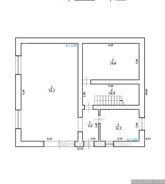
  • Площа загальна, м²: 285
  • Площа ділянки, сот.: 10
  • Поверхів: 2
  • Вид нерухомості цілий будинок

Комунікації

Газ:
є;

Параметри об’єкта

Матеріал стін:
цегла;

Інше

Дата оновлення інформації:
08.01.2026 11:43;

Наші співробітники на зв’язку

Photo

АН Valion

Із задоволенням відповімо на питання з 9-00 до 18-00 у будні, з 10-00 до 16-00 у суботу.

+380 (50) 450-30-82