Продаж квартири Замарстинівська вул. , 76, Львів

1 кімн. · 6/6 пов. · 40.70/13/19 м²

124 000 $
Номер: SF-2-747-635

Цю пропозицію уже закрито

Інформація щодо пропозиції

Продається 1 кімнатна квартира ЖК Avalon Yard бізнес класу . За та за в процесі ремонту. Ціна залежить від стадії ремонту

Чудовий краєвид на Високий замок.
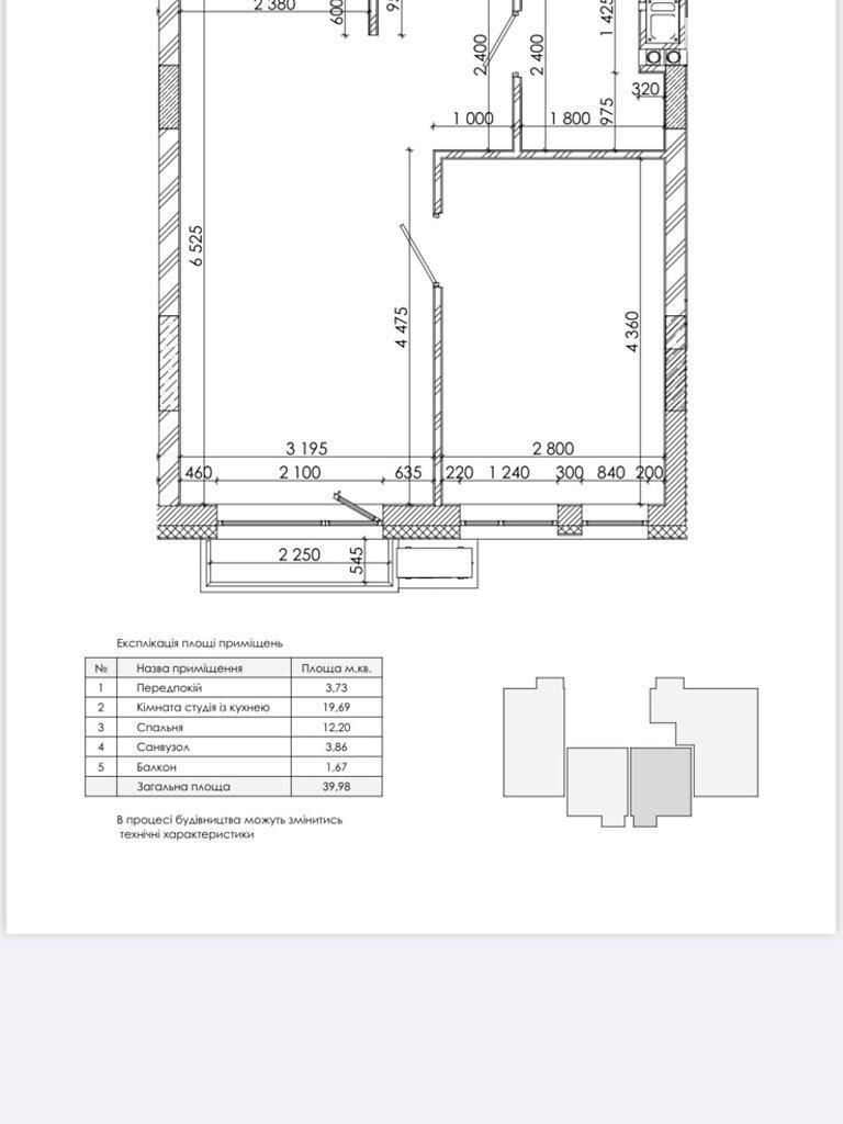
Загальна площа 40, 7 м2 світла та простора правильного планування.

Правоваласності буде оформлене в найближчі дні, тому квартира буде вже з документами.

Роблять ремонт, ціна буде вища ( на суму зроблених робіт )

Також, приємний бонус - три дизайнерські радіатори 1, 8м у подарунок.

  • Ціна: 124 000 $
  • Ціна за кв. метр: ≈3 047 $
  • Ремонт: без оздоблювальних робіт
  • Термін ремонту: в процесі
  • Клас житла: комфорт
  • Типове планування: вільне планування
  • Схема кімнат: роздільна
  • Кількість кімнат: 1 кімн.
  • Площа загальна, м²: 40.70
  • Площа житлова, м²: 13
  • Площа кухні, м²: 19
  • Поверх: 6/6
  • Рік будівництва: 2021-2025, новобуд
  • Санвузлів: 1
  • Район міста: Шевченківський район , Замарстинів
  • Вид нерухомості ізольована

Комунікації

Вода:
центральна;
Газ:
є;
Опалення:
автономне;
Лічильники:
холодна вода, газ;

Інше

Дата оновлення інформації:
24.01.2026 10:50;

Наші співробітники на зв’язку

Photo

АН Valion

Із задоволенням відповімо на питання з 9-00 до 18-00 у будні, з 10-00 до 16-00 у суботу.

+380 (50) 450-30-82