Продаж квартири ЖК вул. Миколайчука, 38 , Миколайчука І. вул., 38, Львів

2 кімн. · 10/16 пов. · 54 м²

80 000 $
Номер: SF-2-992-140

Інформація щодо пропозиції

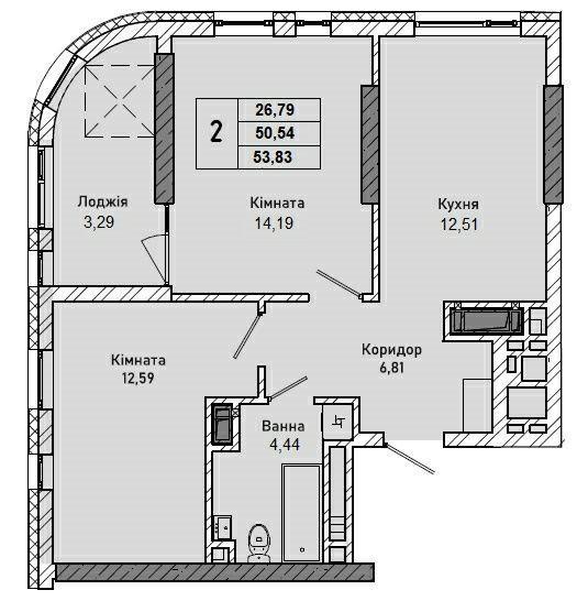
Продається 2-кімнатна квартира в новому ЖК на вул. Миколайчука, 38. Площа 54 м².

Запланована здача кінець 2026 року .
Дуже розвинена інфраструктура все необхідне поблизу, вікна будуть виходити на південно-західну сторону,у будинку буде два ліфти, опалення своя дахова котельня.

Кухня - 12 м².
ЖК комфорт-клас.
Поверх 10 з 16. Район Збоїща, вул. Миколайчука І., Львів.

Це ідеальний вибір для кожного, хто шукає сучасне та комфортне житло. Не втрачайте нагоди стати власником цієї квартири! Зателефонуйте зараз!

  • Ціна: 80 000 $
  • Ціна за кв. метр: ≈1 481 $
  • Ремонт: без оздоблювальних робіт
  • Клас житла: комфорт
  • Типове планування: нестандартне планування
  • Схема кімнат: суміжна
  • Кількість кімнат: 2 кімн.
  • Площа загальна, м²: 54
  • Площа кухні, м²: 12
  • Поверх: 10/16
  • Рік будівництва: 2021-2025, новобуд
  • Санвузлів: 1
  • Район міста: Шевченківський район , Збоїща
  • Вид нерухомості ізольована

Комунікації

Вода:
центральна;
Опалення:
автономне;

Параметри об’єкта

Матеріал стін:
цегла;

Інше

Дата оновлення інформації:
08.01.2026 20:49;

Наші співробітники на зв’язку

Photo

АН Valion

Із задоволенням відповімо на питання з 9-00 до 18-00 у будні, з 10-00 до 16-00 у суботу.

+380 (50) 450-30-82