Продаж квартири Стрийська вул. , 195, Львів

2 кімн. · 9/9 пов. · 68 м²

90 000 $
Номер: SF-3-141-174

Інформація в цій пропозиції застаріла

Інформація щодо пропозиції

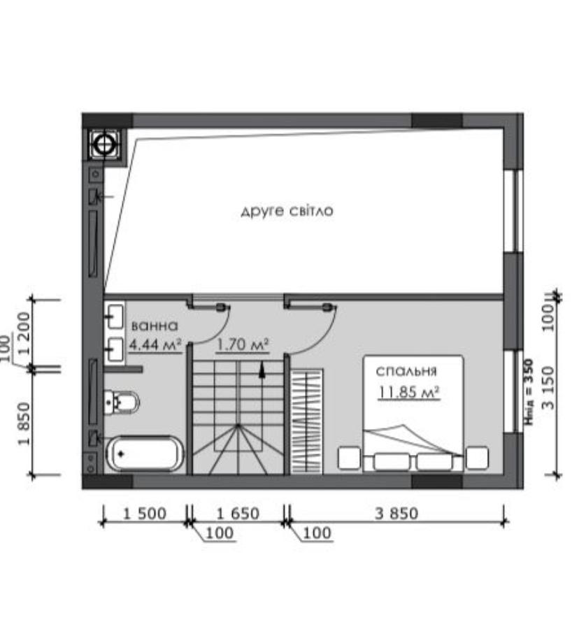
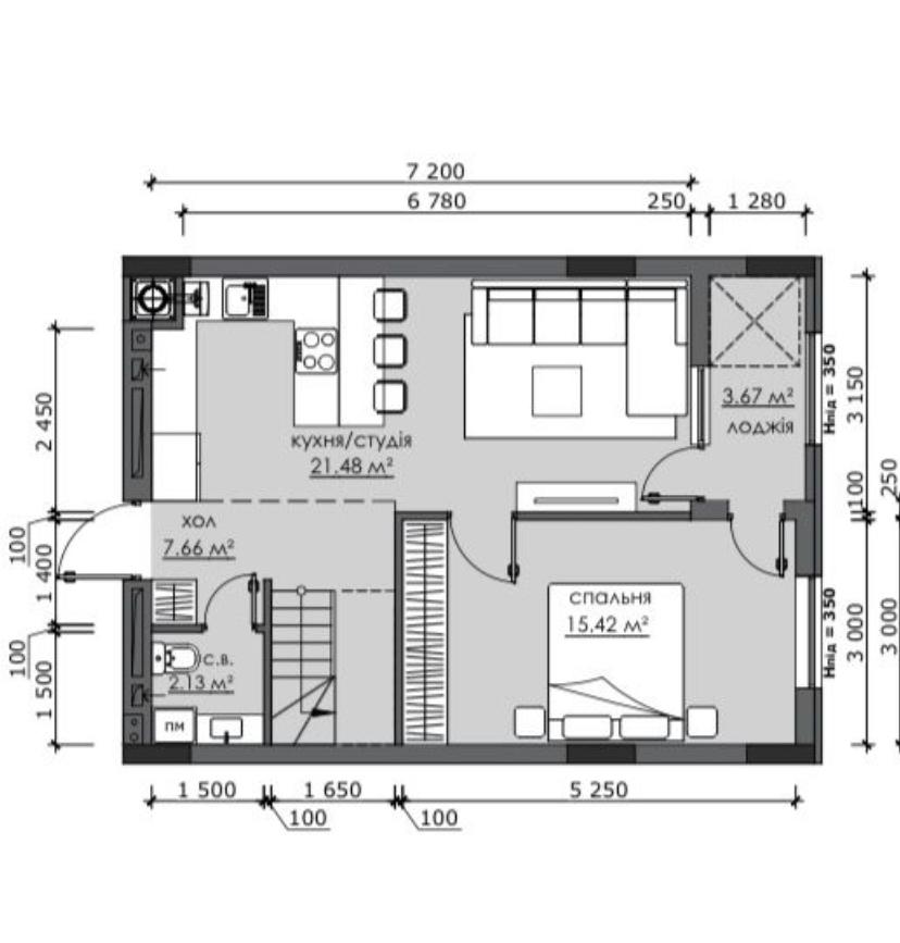
Продам 2-к, 2-вох рівневу квартиру 68-к/м, є можливість збільшити площу. Здача ~2 квартал 2025. Можна купити паркомісце та чердак! Більш детально-дзвоніть

  • Ціна: 90 000 $
  • Ціна за кв. метр: ≈1 324 $
  • Ремонт: без внутрішніх робіт
  • Клас житла: комфорт
  • Типове планування: нестандартне планування
  • Схема кімнат: багаторівнева
  • Кількість кімнат: 2 кімн.
  • Кількість спалень: 1
  • Площа загальна, м²: 68
  • Площа кухні, м²: 21
  • Поверх: 9/9
  • Рік будівництва: 2021-2025, новобуд
  • Санвузлів: 2
  • Балконів: 1
  • Район міста: Сихівський район
  • Вид нерухомості ізольована

Комунікації

Вода:
центральна;
Опалення:
центральне;

Параметри об’єкта

Матеріал стін:
моноліто-каркас;

Інше

Дата оновлення інформації:
11.03.2026 12:01;

Наші співробітники на зв’язку

Photo

АН Valion

Із задоволенням відповімо на питання з 9-00 до 18-00 у будні, з 10-00 до 16-00 у суботу.

+380 (50) 450-30-82