Продаж квартири ЖК Auroom Lounge , Під Голоском вул. , 22, Львів

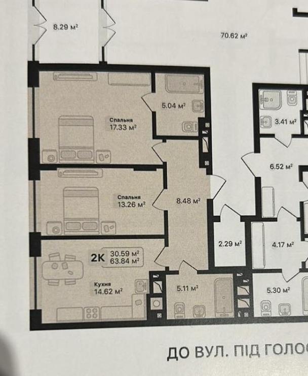
2 кімн. · 1/7 пов. · 63.84/30.59/14.62 м²

1 800 $/м²
Номер: SF-3-269-206

Інформація щодо пропозиції

Продається 2-кімнатна квартира в ЖК Auroom Lounge (бізнес-клас)
вул. Під Голоском, район Голоско, м. Львів
Простора квартира з нестандартним плануванням — 63,84 м²
Ідеальний варіант для тих, хто хоче зробити ремонт під себе.
Основні характеристики:
— 2 ізольовані кімнати
— кухня-студія 14,62 м²
— загальна площа 63,84 м²
— житлова площа 30,59 м²
— 1 поверх із 7
— квартира без внутрішніх робіт
🏢 ЖК Auroom Lounge — сучасний будинок бізнес-класу
— будинок зданий, можна одразу розпочинати ремонт
— новобудова 2021–2025 рр.
— доглянута прибудинкова територія
— сучасні під’їзди та комфортне середовище
📍 Зручне розташування
Район Голоско — поєднання спокою та близькості до центру міста, поруч уся необхідна інфраструктура, зручна транспортна розв’язка.
📞 Не втрачайте шанс придбати комфортне житло!
Телефонуйте та домовляйтесь про перегляд у зручний для вас час.

  • Ціна: ≈114 912 $
  • Ціна за кв. метр: 1 800 $
  • Ремонт: без внутрішніх робіт
  • Клас житла: бізнес
  • Типове планування: нестандартне планування
  • Схема кімнат: роздільна
  • Кількість кімнат: 2 кімн.
  • Кількість спалень: 1
  • Площа загальна, м²: 63.84
  • Площа житлова, м²: 30.59
  • Площа кухні, м²: 14.62
  • Поверх: 1/7
  • Рік будівництва: 2021-2025, новобуд
  • Санвузлів: 2
  • Район міста: Шевченківський район , Голоско
  • Вид нерухомості ізольована

Комунікації

Вода:
центральна;
Газ:
є;
Опалення:
автономне, газове;
Лічильники:
газ;

Інше

Дата оновлення інформації:
20.02.2026 10:25;

Наші співробітники на зв’язку

Photo

АН Valion

Із задоволенням відповімо на питання з 9-00 до 18-00 у будні, з 10-00 до 16-00 у суботу.

+380 (50) 450-30-82