Продаж квартири ЖК Сімейний Comfort , Немирівське шосе, Вінницькі Хутори, Вінницька область, Вінницький район

2 кімн. · 4/10 пов. · 57.30 м²

62 000 $
Номер: SF-3-287-869

Інформація щодо пропозиції

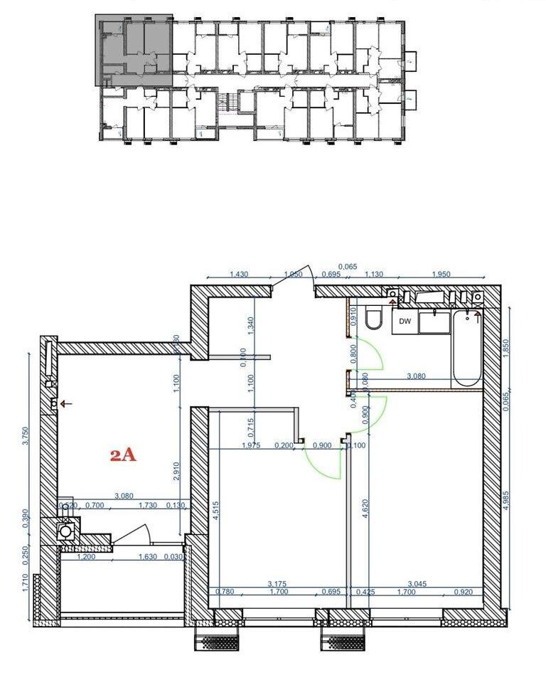
Продається 2-кімнатна квартира в новому будинку житлового комплексу "Сімейний Comfort" комфорт-класу, площею 57.30 м² без оздоблювальних робіт.
Розташована квартира на околиці міста, по Немирівському шосе, у районі Вінницькі Хутори. Квартира знаходиться на 4-му поверсі 10-поверхового будинку. Планування квартири - нестандартне.
Чудова двох кімнатна квартира
- Індивідуальне перепланування (не кутова)
- В ціну включено монтаж електрики(2000$)
- Комфортний 4й поверх(вікна в двір)
- Індивідуальне газове опалення
- Панорамні вікна
- Можливий продаж з кладовкою біля квартири
- У будинку є підземний паркінг та бомбосховище

Будинок побудований, здача
у 2 кварталі 2026 року

Не втрачайте можливості покращити свої житлові умови у новобудові! Зателефонуйте нам прямо зараз для детальної консультації.

  • Ціна: 62 000 $
  • Ціна за кв. метр: ≈1 082 $
  • Ремонт: без оздоблювальних робіт
  • Клас житла: комфорт
  • Типове планування: нестандартне планування
  • Кількість кімнат: 2 кімн.
  • Кількість спалень: 1
  • Площа загальна, м²: 57.30
  • Поверх: 4/10
  • Рік будівництва: 2016-2020, новобуд
  • Санвузлів: 1
  • Розташування: околиця
  • Вид нерухомості ізольована

Комунікації

Вода:
центральна;
Опалення:
автономне, газове;

Параметри об’єкта

Матеріал стін:
цегла;

Інше

Дата оновлення інформації:
06.03.2026 12:13;

Наші співробітники на зв’язку

Photo

АН Valion

Із задоволенням відповімо на питання з 9-00 до 18-00 у будні, з 10-00 до 16-00 у суботу.

+380 (50) 450-30-82