Продаж таунхауса Рудакі вул., Львів

4 кімн. · 210 м² · 2.50 сот.

337 600 $
Номер: SH-217-481

Інформація щодо пропозиції

Продаж котеджів від забудовника на етапі котловану Старт будівництва -1 квартал 2026року Здача - 2 квартал 2027 року Планування, за потреби, можна змінювати до старту будівництва в межах зовнішніх стін одного котеджу Котеджі знаходяться на похилій ділянці , через це заїзд відбувається на 3 поверх, і потім вже йдуть два поверхи вних + вихід на дах Ліфт встановлюється за додаткову оплату, одразу з виїздом на експлуатований дах Вартість до початку будівництва - 211м2 х 1600$ = 337600$ Вартість після початку будівництва 211м2 = 1700$ = 358700$ Можливе розтермінування платежів Всього буде 4 котеджі, в наявності 2 котеджі, 2 вже продані У вартість входить будинок з штукатуреними стінами, всіма підключеними комункаціями (світло, газ, вода) та власним септиком, фасад вкритий баранником та ландшафт згідно проекту, вулиця постелена бруківкою , вуличне освітлення З котеджів вигляд на винниківський ліс Котеджі на горбочку , тому відкриваються чудові панорами Ділянка 2,5 сот

  • Ціна: 337 600 $
  • Ціна за кв. метр: ≈1 608 $
  • Клас житла: комфорт
  • Ремонт: без оздоблювальних робіт
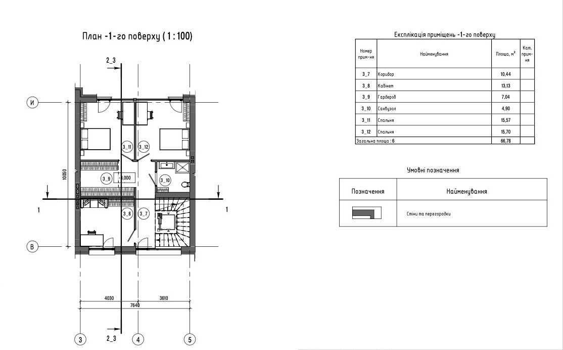
  • Кількість кімнат: 4 кімн.
  • Кількість спалень: 3
  • Площа загальна, м²: 210
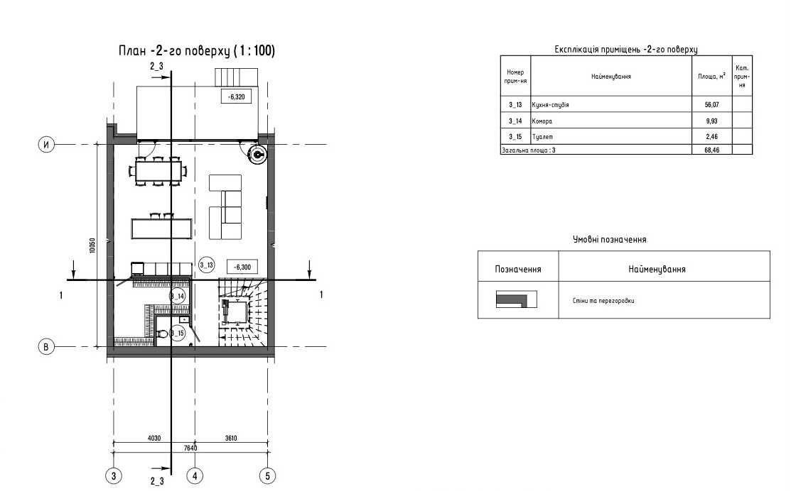
  • Площа кухні, м²: 56.07
  • Площа ділянки, сот.: 2.50
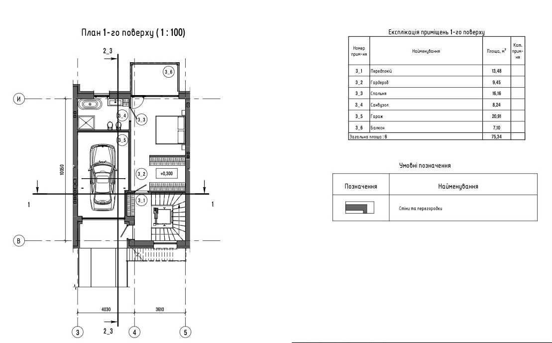
  • Поверхів: 3
  • Район міста: Личаківський район , Майорівка
  • Вид нерухомості таунхаус

Комунікації

Газ:
є;
Опалення:
газове;

Параметри об’єкта

Матеріал стін:
цегла;

Інше

Дата оновлення інформації:
19.02.2026 10:51;

Наші співробітники на зв’язку

Photo

АН Valion

Із задоволенням відповімо на питання з 9-00 до 18-00 у будні, з 10-00 до 16-00 у суботу.

+380 (50) 450-30-82