Продажа квартиры Золочевская ул. , 28А, Харьков

3 комн. · 10/10 эт. · 68 м²

24 900 $
Номер: SF-3-126-116

Это предложение уже закрыто

Информация о предложении

Клієнт: Олексій
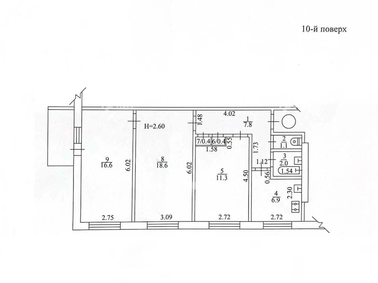
Продам 3 кімнатну квартиру на Залютине по вул. Золочівська, до метро 12-15 хвилин на громадському транспорті. Квартира розташована на 10 поверсі 10 поверхового будинку. Загальна площа 68 м2, житлова площа 47 м2, кухня 7 м2. Квартира в житловому стані, потребує косметичного ремонту. Продаж із меблями та технікою. Поруч уся необхідна інфраструктура: зупинка громадського транспорту, супермаркети, магазини, ринок, школа, дитячий садок

  • Цена: 24 900 $
  • Цена за кв. метр: ≈366 $
  • Ремонт: частичный ремонт
  • Класс жилья: эконом
  • Число комнат: 3 комн.
  • Площадь общая, м²: 68
  • Площадь кухни, м²: 7
  • Этаж: 10/10
  • Район города: Холодногорское направление , Залютино
  • Вид недвижимости изолированная

Коммуникации

Вода:
центральная;
Отопление:
центральное;

Прочее

Дата обновления информации:
10.04.2026 12:58;

Наши сотрудники на связи

Photo

АН Valion

С удовольствием ответим на вопросы с 9-00 до 18-00 в будние дни, с 10-00 до 16-00 в субботу.

+380 (50) 450-30-82