Продажа квартиры ЖК «Родники» , Яны Червоной ул. , 11, Харьков

1 комн. · 16/17 эт. · 58 м²

45 000 $
Номер: SF-3-223-654

Информация о предложении

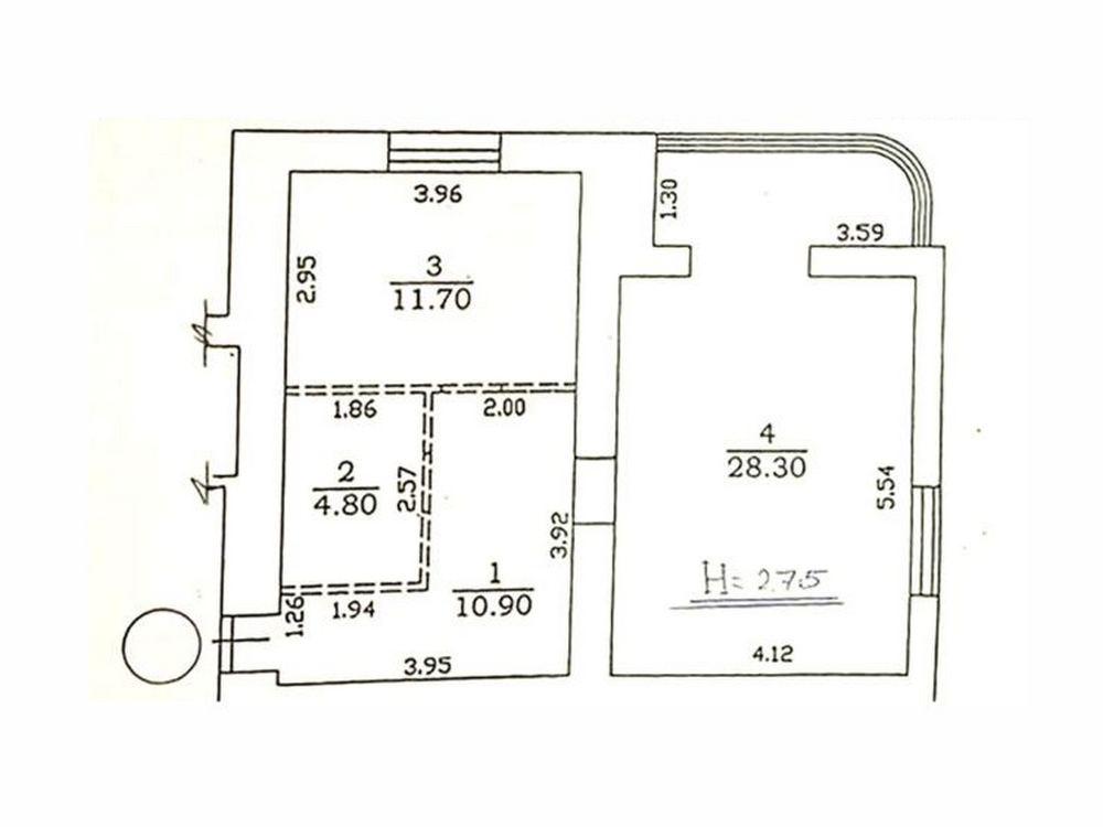
Продам квартиру с 1 комнатой в новострое ЖК «Родники» с капитальным ремонтом, площадью 58 м².
Жилье расположено на 16 этаже 17-этажного дома на Северной Салтовке-1 по улице Яны Червоной 11.
єВідновлення.

Эта квартира эконом-класса имеет кухню 15 м². Приглашаем вас стать владельцем этого жилья с видом на спальные районы Харькова. Не упускайте шанса иметь комфортные условия для жизни!

Можно приобрести по сертификату єВідновлення!
(В случае покупки недвижимости по сертификату, покупателям предоставляем консультации, сопровождение и помощь в оформлении сделок).

  • Цена: 45 000 $
  • Цена за кв. метр: ≈776 $
  • Ремонт: капитальный ремонт
  • Класс жилья: эконом
  • Типовая планировка: нестандартная планировка
  • Схема комнат: раздельная
  • Число комнат: 1 комн.
  • Площадь общая, м²: 58
  • Площадь кухни, м²: 15
  • Этаж: 16/17
  • Год постройки: 2021-2025, новострой
  • Санузлов: 1
  • Балконов: 1
  • Район города: Салтовское направление , Северная Салтовка-1
  • Расположение: спальные районы
  • Вид недвижимости изолированная

Коммуникации

Вода:
центральная;
Газ:
нет;
Отопление:
центральное;
Счетчики:
холодная вода, горячая вода, отопление;

Прочее

Дата обновления информации:
26.02.2026 17:49;

Наши сотрудники на связи

Photo

АН Valion

С удовольствием ответим на вопросы с 9-00 до 18-00 в будние дни, с 10-00 до 16-00 в субботу.

+380 (50) 450-30-82