Продажа квартиры ЖК «Мира-3» , Индустриальная, Мира ул., 40, Харьков
1 комн. · 1/9 эт. · 40 м²
22 000 $
Номер: SF-3-229-086
Информация о предложении
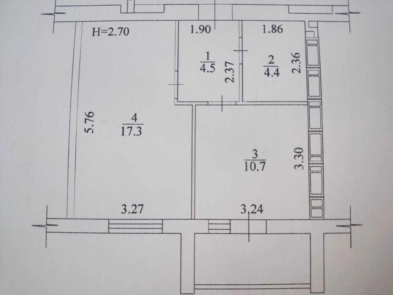
Предлагаю 1-комнатную квартиру в новостройке ЖК "Мира-3" площадью 40 м² без внутренних работ. Расположен на 1 этаже 9-этажного дома, ул. Мира, близко к станции метро Индустриальная и других спальных районах.
Кухня квартиры 11 м². Жилье в экономклассе. Стоимость – выгодная, ведь квартира без внутренних работ – вы сможете дополнительно воплотить собственные дизайнерские идеи.
Не упускайте возможность стать владельцем комфортного жилья в новом доме. Будьте первыми, кто приобретет эту квартиру. Звоните для деталей.
- Цена: 22 000 $
- Цена за кв. метр: ≈550 $
- Ремонт: без внутренних работ
- Класс жилья: эконом
- Типовая планировка: нестандартная планировка
- Число комнат: 1
- Площадь общая, м²: 40
- Площадь кухни, м²: 11
- Этаж: 1/9
- Год постройки: 2021-2025, новострой
- Санузлов: 1
- Балконов: 1
- Район города: Роганское направление, ХТЗ
- Расположение: спальные районы
Коммуникации
- Вода:
- центральная;
- Газ:
- нет;
- Отопление:
- центральное;
- Счетчики:
- холодная вода, горячая вода, отопление;
Параметры объекта
- Материал стен:
- кирпич;
Инфраструктура и сервис
- Общественный транспорт:
- метро - Индустриальная (15 мин. пешком, 10 мин. на транспорте);
Прочее
- Дата обновления информации:
- 23.10.2025 11:42;
Наши сотрудники на связи

АН Valion
С удовольствием ответим на вопросы с 9-00 до 18-00 в будние дни, с 10-00 до 16-00 в субботу.