Продажа квартиры ЖК «Гидропарк» , Киевская , Борткевича ул. , 11, Харьков

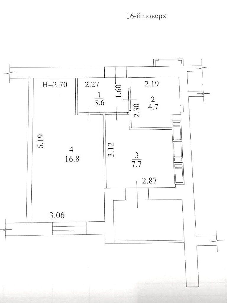
1 комн. · 16/16 эт. · 37.20/16.80/7.70 м²

15 000 $
Номер: SF-3-236-803

Информация о предложении

Продается 1-комнатная квартира в новом ЖК "Гидропарк" без внутренних работ. Площадь квартиры – 37,20 м².
Расположен в жилом комплексе "Гидропарк", улица Борткевича, спальный район города Харькова.

Квартира расположена на 16 этаже 16-этажного дома. Жилая площадь 16,80 м², кухня 7,70 м². Класс жилья – эконом.

Не упускайте возможность приобрести комфортное жилье в престижном районе города. Звоните!

  • Цена: 15 000 $
  • Цена за кв. метр: ≈403 $
  • Ремонт: без внутренних работ
  • Класс жилья: эконом
  • Типовая планировка: нестандартная планировка
  • Число комнат: 1 комн.
  • Площадь общая, м²: 37.20
  • Площадь жилая, м²: 16.80
  • Площадь кухни, м²: 7.70
  • Этаж: 16/16
  • Год постройки: 2021-2025, новострой
  • Санузлов: 1
  • Балконов: 1
  • Район города: Салтовское направление , Журавлёвка
  • Расположение: спальные районы
  • Вид недвижимости изолированная

Коммуникации

Вода:
центральная;
Газ:
нет;
Отопление:
центральное;
Счетчики:
холодная вода, горячая вода, отопление;

Параметры объекта

Материал стен:
кирпич;

Инфраструктура и сервис

Общественный транспорт:
метро - Киевская (40 мин. пешком, 25 мин. на транспорте);

Прочее

Дата обновления информации:
30.01.2026 13:29;

Наши сотрудники на связи

Photo

АН Valion

С удовольствием ответим на вопросы с 9-00 до 18-00 в будние дни, с 10-00 до 16-00 в субботу.

+380 (50) 450-30-82