Продажа квартиры Борткевича ул., 11, Харьков

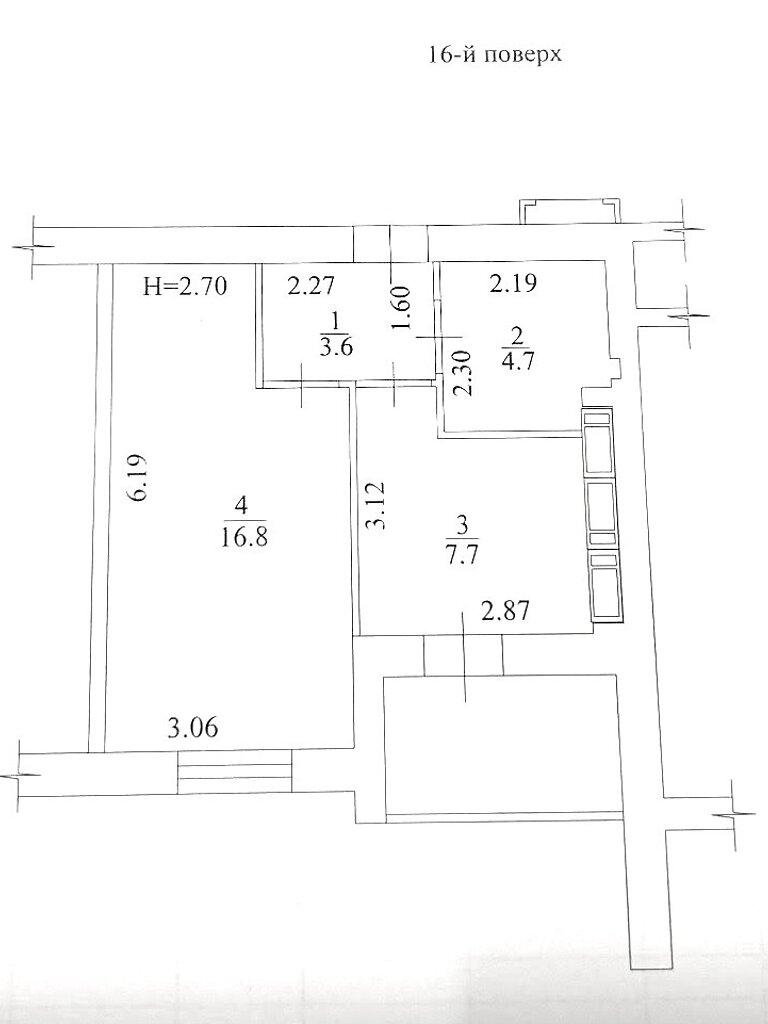
1 комн. · 16/16 эт. · 37.20/16.80/7.70 м²

15 000 $
Номер: SF-3-236-819

Информация о предложении

Продается 1 комнатная квартира в новостройке, ЖК Гидропарк с очень красивым видом. Из ваших окон потрясающий панорамный вид на реку, лес и город, а не на двор, «окна в окна» или на проезжую часть.
Раздельная планировка с отдельной кухней (не студия). По желанию можно сделать обширную студию. Состояние квартиры: Строительное состояние Выполнена горизонтальная разводка отопления, установлены 2 радиатора. Энергосберегающие МП-окна с трехкамерным стеклопакетом. Металлическая входная дверь. Дом кирпичный, утепленный, в подъезде электронный доступ (брелок/приложение). Работают 2 лифта пассажирский и грузовой. Территория и район: Озелененная территория, благоустройство: клумбы, асфальтированные дорожки, парковка, детская и спортивная площадки. Рядом Журавловский гидропарк, живописное место для прогулок и отдыха. Развитая Инфраструктура: Остановки транспорта рядом (трамваи и автобусы) До метро Киевская или Салтовская (бывшая Героев Труда) 10 минут. Рядом Новая почта, аптека, банк, школа, детсад, магазины, рынок, ТЦ, поликлиника, кафе, рестораны. Идеальный вариант для жизни или инвестиции в аренду

  • Цена: 15 000 $
  • Цена за кв. метр: ≈403 $
  • Ремонт: без внутренних работ
  • Класс жилья: эконом
  • Типовая планировка: свободная планировка
  • Число комнат: 1
  • Площадь общая, м²: 37.20
  • Площадь жилая, м²: 16.80
  • Площадь кухни, м²: 7.70
  • Этаж: 16/16
  • Год постройки: 2021-2025, новострой
  • Район города: Салтовское направление, Журавлёвка

Коммуникации

Вода:
центральная;
Отопление:
центральное;

Параметры объекта

Материал стен:
кирпич;

Прочее

Дата обновления информации:
06.11.2025 16:12;

Наши сотрудники на связи

Photo

АН Valion

С удовольствием ответим на вопросы с 9-00 до 18-00 в будние дни, с 10-00 до 16-00 в субботу.

+380 (50) 450-30-82