Продажа квартиры Тывровское шоссе, 51Б, Лука-Мелешківська, Винницкая область, Винницкий район

2 комн. · 2/4 эт. · 55 м²

46 000 $
Номер: SF-3-239-296

Это предложение уже закрыто

Информация о предложении

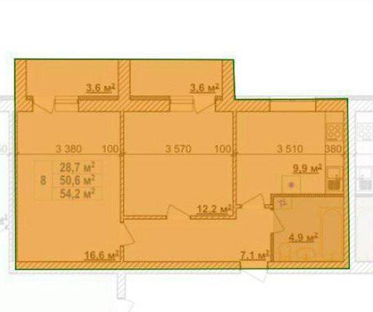
Предлагаю 2-комнатную квартиру в новостройке площадью 55 м², без внутренних работ. Квартира находится на Тывровском шоссе, рядом с улицей Лука-Мелешковской.
Это жилье расположено на 2-м этаже 4-этажного дома. Кухня 9 м2.
Жилье относится к комфорт-классу.
Не упускайте свой шанс стать владельцем этой квартиры! Позвоните нам уже сейчас.

  • Цена: 46 000 $
  • Цена за кв. метр: ≈836 $
  • Ремонт: без внутренних работ
  • Класс жилья: комфорт
  • Типовая планировка: нестандартная планировка
  • Число комнат: 2 комн.
  • Число спален: 1
  • Площадь общая, м²: 55
  • Площадь кухни, м²: 9
  • Этаж: 2/4
  • Год постройки: 2021-2025, новострой
  • Санузлов: 1
  • Вид недвижимости изолированная

Коммуникации

Вода:
центральная;
Газ:
есть;
Отопление:
автономное, газовое;
Счетчики:
газ;

Параметры объекта

Материал стен:
кирпич;

Прочее

Дата обновления информации:
25.02.2026 14:09;

Наши сотрудники на связи

Photo

АН Valion

С удовольствием ответим на вопросы с 9-00 до 18-00 в будние дни, с 10-00 до 16-00 в субботу.

+380 (50) 450-30-82