Продажа квартиры ЖК Родниковой , Родниковая ул., 5, Винница

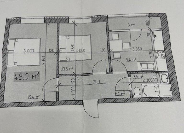
2 комн. · 3/3 эт. · 48.20/26.90/10.20 м²

45 000 $
Номер: SF-3-247-444

Информация о предложении

Продается 2-х комнатная квартира площадью 48.20 м² без внутренних работ.
Расположена на Барском шоссе, ул. Родниковая, г. Винница.
Квартира на 3 этаже 3-этажного дома.
Жилая площадь 26.90 м², кухня 10.20 м².
Класс комфорта.
Не упускайте свой шанс стать владельцем этой уютной квартиры. Звоните прямо сейчас!

  • Цена: 45 000 $
  • Цена за кв. метр: ≈934 $
  • Ремонт: без внутренних работ
  • Класс жилья: эконом
  • Типовая планировка: нестандартная планировка
  • Число комнат: 2 комн.
  • Число спален: 1
  • Площадь общая, м²: 48.20
  • Площадь жилая, м²: 26.90
  • Площадь кухни, м²: 10.20
  • Этаж: 3/3
  • Год постройки: 2021-2025, новострой
  • Санузлов: 1
  • Район города: Центральный , Барское шоссе
  • Вид недвижимости изолированная

Коммуникации

Вода:
центральная;
Газ:
есть;
Отопление:
автономное, газовое, двуконтурный котел;

Параметры объекта

Материал стен:
кирпич;

Прочее

Дата обновления информации:
04.01.2026 17:03;

Наши сотрудники на связи

Photo

АН Valion

С удовольствием ответим на вопросы с 9-00 до 18-00 в будние дни, с 10-00 до 16-00 в субботу.

+380 (50) 450-30-82