Продажа квартиры Тракторостроителей просп. , 152, Харьков

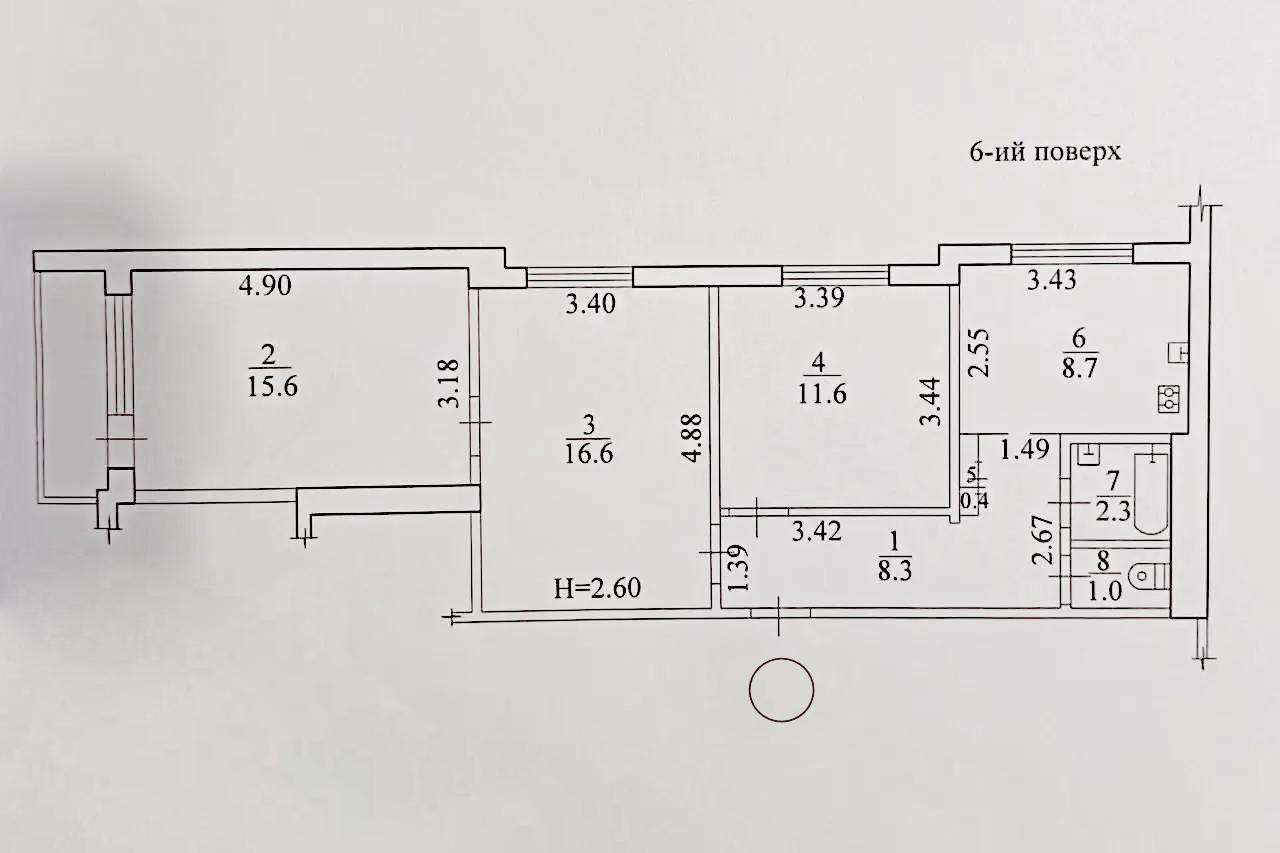
3 комн. · 6/16 эт. · 67/44/9 м²

40 000 $
Номер: SF-3-251-211

Информация о предложении

Продам 3-комн. квартиру на Салтовке, 606 мкр., просп. Тракторостроителей 152.

Этаж – 6/16, общ. площадь – 67 м²., жилая – 44 м²., кухня – 9 м².
Жилое состояние, больше под ремонт, МП окна, заменены входные двери.
Закрытый тамбур на три квартиры.
Очень чистый подъезд, два лифта – пассажирский и грузовой.

Рядом: автогаражный кооператив/стоянка, большая детская площадка, магазины, супермаркеты, аптеки.
Школы/сады не далеко, но они пока не работают.

Возможен торг.

  • Цена: 40 000 $
  • Цена за кв. метр: ≈597 $
  • Ремонт: без ремонта
  • Класс жилья: эконом
  • Схема комнат: смежно-изолированная
  • Число комнат: 3 комн.
  • Площадь общая, м²: 67
  • Площадь жилая, м²: 44
  • Площадь кухни, м²: 9
  • Этаж: 6/16
  • Год постройки: 1951-1970
  • Санузлов: 1
  • Район города: Салтовское направление , 606
  • Вид недвижимости изолированная

Коммуникации

Вода:
центральная;
Отопление:
центральное;

Параметры объекта

Лифт:
пассажирский, грузовой;
Материал стен:
панель;

Прочее

Дата обновления информации:
21.01.2026 19:36;

Наши сотрудники на связи

Photo

АН Valion

С удовольствием ответим на вопросы с 9-00 до 18-00 в будние дни, с 10-00 до 16-00 в субботу.

+380 (50) 450-30-82