Продажа квартиры Студенческая , Гвардейцев Широнинцев ул. , 40, Харьков

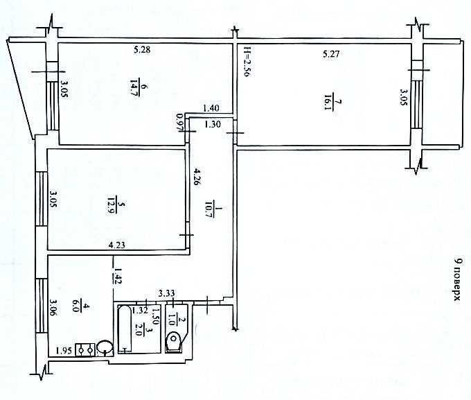
3 комн. · 9/9 эт. · 67 м²

47 000 $
Номер: SF-3-267-703

Информация о предложении

Продается светлая и уютная трехкомнатная квартира по ул. Гвардейцев-Широнинцев, 40, Салтовка, метро Студенческая - 15 минут пешком.
Квартира – идеальная основа для реализации собственного дизайнерского проекта без переплаты за чужой ремонт. Основные преимущества квартиры:
• Верхняя подача воды и отопления – в квартире всегда тепло,
• Современный лифт, замененный ~5 лет назад
• Новые металлопластиковые окна VEKA (5-камерные) с москитными сетками
• Отремонтированная крыша (01.09.2025) — есть подтверждение ЖКХ
• Два балкона после ремонта
• Уже выполнены черновые работы (экономия вашего бюджета): -Демонтированные стены и санузел - больше пространства и свободы планирования
- заменены трубы отопления и батареи
- замененная канализация
- сделана новая электропроводка + щиток в квартире
- вывезенный строительный мусор
– квартира уже подготовлена ​​к чистовому ремонту.
Локация, которая продает сама себя: • 15 минут пешком до метро • 15–20 минут до ТЦ и рынка Непокоренных • Спокойный, обжитый район — идеально для семьи
Звоните, отвечу на вопросы и организую просмотр. Квартира с большим потенциалом в хорошем месте!

  • Цена: 47 000 $
  • Цена за кв. метр: ≈701 $
  • Ремонт: без отделочных работ
  • Класс жилья: эконом
  • Типовая планировка: чешка
  • Схема комнат: раздельная
  • Число комнат: 3 комн.
  • Число спален: 2
  • Площадь общая, м²: 67
  • Площадь кухни, м²: 6
  • Этаж: 9/9
  • Санузлов: 1
  • Балконов: 2
  • Район города: Салтовское направление , 607
  • Вид недвижимости изолированная

Коммуникации

Вода:
центральная;
Газ:
есть;
Отопление:
центральное;

Параметры объекта

Материал стен:
панель;

Инфраструктура и сервис

Общественный транспорт:
метро - Студенческая (15 мин. пешком);

Прочее

Дата обновления информации:
19.01.2026 18:35;

Наши сотрудники на связи

Photo

АН Valion

С удовольствием ответим на вопросы с 9-00 до 18-00 в будние дни, с 10-00 до 16-00 в субботу.

+380 (50) 450-30-82