Продажа квартиры Амосова ул. , 23, Харьков

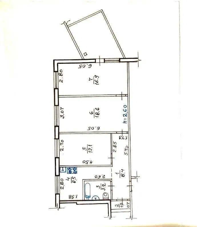
3 комн. · 7/9 эт. · 75 м²

38 000 $
Номер: SF-3-280-032

Информация о предложении

Продам 3к квартиру ул. Амосова, 23 625 м/р Медкомплекс Салтовка

Площадь 75кв.м с большой утепленной лоджией 13кв.м, 7 этаж 9 этажного дома

Отличный вариант для большой семьи или инвестиции в арендный бизнес.

О квартире:
– Просторная планировка
– Большая кухня 9кв.м – идеально для совместного отдыха.
– Утепленная лоджия с батареями 13кв.м с дополнительным пространством.
– Металлопластиковые окна в отличном состоянии
– Мебель остается новым владельцам
– аккуратное жилое состояние, квартира теплая и светлая
– Тихие соседи, чистый подъезд
– Уютный двор, подальше от дороги – тишина гарантирована
– Рядом все необходимое:
– Удобная транспортная развязка

  • Цена: 38 000 $
  • Цена за кв. метр: ≈507 $
  • Ремонт: косметический ремонт
  • Класс жилья: эконом
  • Типовая планировка: улучшенная планировка
  • Схема комнат: смежная
  • Число комнат: 3 комн.
  • Площадь общая, м²: 75
  • Площадь кухни, м²: 9
  • Этаж: 7/9
  • Санузлов: 1
  • Район города: Салтовское направление , 625 (Медкомплекс)
  • Вид недвижимости изолированная

Коммуникации

Вода:
центральная;
Отопление:
центральное;

Параметры объекта

Материал стен:
панель;

Прочее

Дата обновления информации:
24.03.2026 09:18;

Наши сотрудники на связи

Photo

АН Valion

С удовольствием ответим на вопросы с 9-00 до 18-00 в будние дни, с 10-00 до 16-00 в субботу.

+380 (50) 450-30-82