Продажа квартиры ЖК «Гидропарк» , Киевская , Шевченко ул. , Харьков

1 комн. · 6/9 эт. · 37 м²

24 000 $
Номер: SF-3-294-692

Информация о предложении

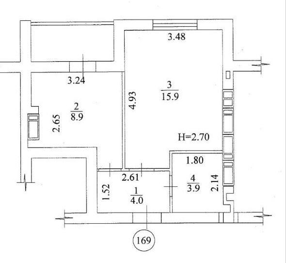
Продається квартира в новому житловому комплексі "Гідропарк" 37 м², без оздоблювальних робіт. 1 кімната, кухня 9 м², нестандартне планування, поверх 6 із 9.

Розташована квартира в спальному районі Шишківка, поруч із метро Київська. Це дозволяє вам легко та швидко дістатися до будь-якої частини міста Харкова. Житловий комплекс має всі необхідні інфраструктурні об'єкти.

Квартира економ-класу, ідеально підходить для тих, хто хоче зробити ремонт на свій смак. Не втрачайте можливості придбати це комфортне житло в новому будинку!

  • Цена: 24 000 $
  • Цена за кв. метр: ≈649 $
  • Ремонт: без отделочных работ
  • Класс жилья: эконом
  • Типовая планировка: нестандартная планировка
  • Схема комнат: раздельная
  • Число комнат: 1 комн.
  • Площадь общая, м²: 37
  • Площадь кухни, м²: 9
  • Этаж: 6/9
  • Год постройки: 2021-2025, новострой
  • Санузлов: 1
  • Район города: Пятихатское направление , Шишковка
  • Расположение: спальные районы
  • Вид недвижимости изолированная

Коммуникации

Вода:
центральная;
Отопление:
автономное;

Параметры объекта

Материал стен:
кирпич;

Инфраструктура и сервис

Общественный транспорт:
метро - Киевская (40 мин. пешком, 25 мин. на транспорте);

Прочее

Дата обновления информации:
22.03.2026 09:49;

Наши сотрудники на связи

Photo

АН Valion

С удовольствием ответим на вопросы с 9-00 до 18-00 в будние дни, с 10-00 до 16-00 в субботу.

+380 (50) 450-30-82