Продажа квартиры Профессорская ул. , 18, Харьков

4 комн. · 14/15 эт. · 130 м²

78 000 $
Номер: SF-3-294-861

Информация о предложении

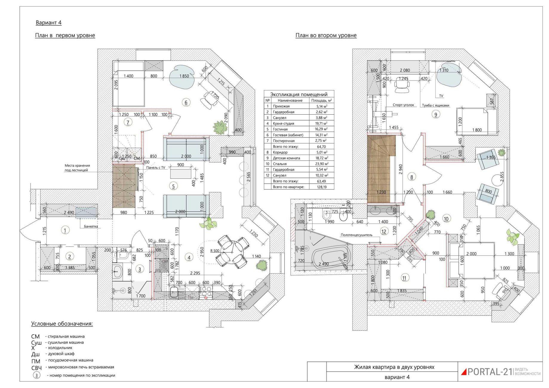
Продам просторную двухуровневую квартиру в современном ЖК "Сокольники" на ул. Профессорский. Кладовка 7,9 м² входит в цену.
Общая площадь: 130,1 м² - Этаж: 14–15 / 15 - Вид: на лес (преимущественно) Квартира имеет удобную и продуманную планировку: два уровня с четкой зонировкой.
Есть готовый дизайн-проект, перепланировка согласована с БТИ и внесена в техпаспорт.
Первый и второй уровень имеют одинаковую высоту потолка (второй уровень – такой же полноценный этаж)
Выполнен качественный черновой ремонт: - разведенное электричество - сделана сантехника - штукатурка стен - стяжка пола - утепление стен и потолка (15 этаж) Установлено: - бойлер - качественные радиаторы - установки - внутренние части смесителей - металлический каркас лестницы.
Первый уровень: - прихожая (с нишей под большой шкаф) - гардеробная при входе - санузел (душ, инсталляция, умывальник) - кухня-студия - комната (кабинет/гостевая/спальня) - хозяйственное помещение (прачечная + щитовая)
Второй уровень: - спальня с большой гардеробной - детская комната - большой санузел: ванная, душ, инсталляция, 2 умывальника
Бонус Вместе с квартирой: кладовая 7,9 м² с окном (14 этаж) с полностью завершенным ремонтом (установлена качественная дверь, на полу плитка, стены и потолок окрашены, есть свет)
Дом сдан в 2020 году – два лифта: пассажирский и грузовой – уже заселен – парковка на территории. Инфраструктура - частная школа и детсад Бойко - магазин на территории ЖК - 3 мин машиной - спорткомплекс "Тетра" - 5 мин машиной - Центральный парк - 5 мин пешком - Лесопарк (велодорожки, прогулки) - 4 мин машиной - супермаркеты, аптеки
Дополнительно – квартира без долгов – документы готовы к продаже – установлен счетчик на телпо – возможна продажа за наличные, безналично, или через есть Восстановление.

  • Цена: 78 000 $
  • Цена за кв. метр: ≈600 $
  • Ремонт: без отделочных работ
  • Класс жилья: бизнес
  • Схема комнат: многоуровневая
  • Число комнат: 4 комн.
  • Площадь общая, м²: 130
  • Площадь кухни, м²: 20
  • Этаж: 14/15
  • Год постройки: 2021-2025, новострой
  • Санузлов: 2
  • Район города: Пятихатское направление , Сокольники
  • Расположение: центр города
  • Вид недвижимости изолированная

Коммуникации

Вода:
центральная;
Отопление:
центральное;

Параметры объекта

Материал стен:
кирпич;

Прочее

Дата обновления информации:
23.03.2026 15:25;

Наши сотрудники на связи

Photo

АН Valion

С удовольствием ответим на вопросы с 9-00 до 18-00 в будние дни, с 10-00 до 16-00 в субботу.

+380 (50) 450-30-82