Продажа квартиры Каденюка ул. , Харьков

2 комн. · 1/5 эт. · 45 м²

33 000 $
Номер: SF-3-296-458

Информация о предложении

Продам 2-комн. квартиру на Новых домах, ул. Каденюка.
єВідновлення.

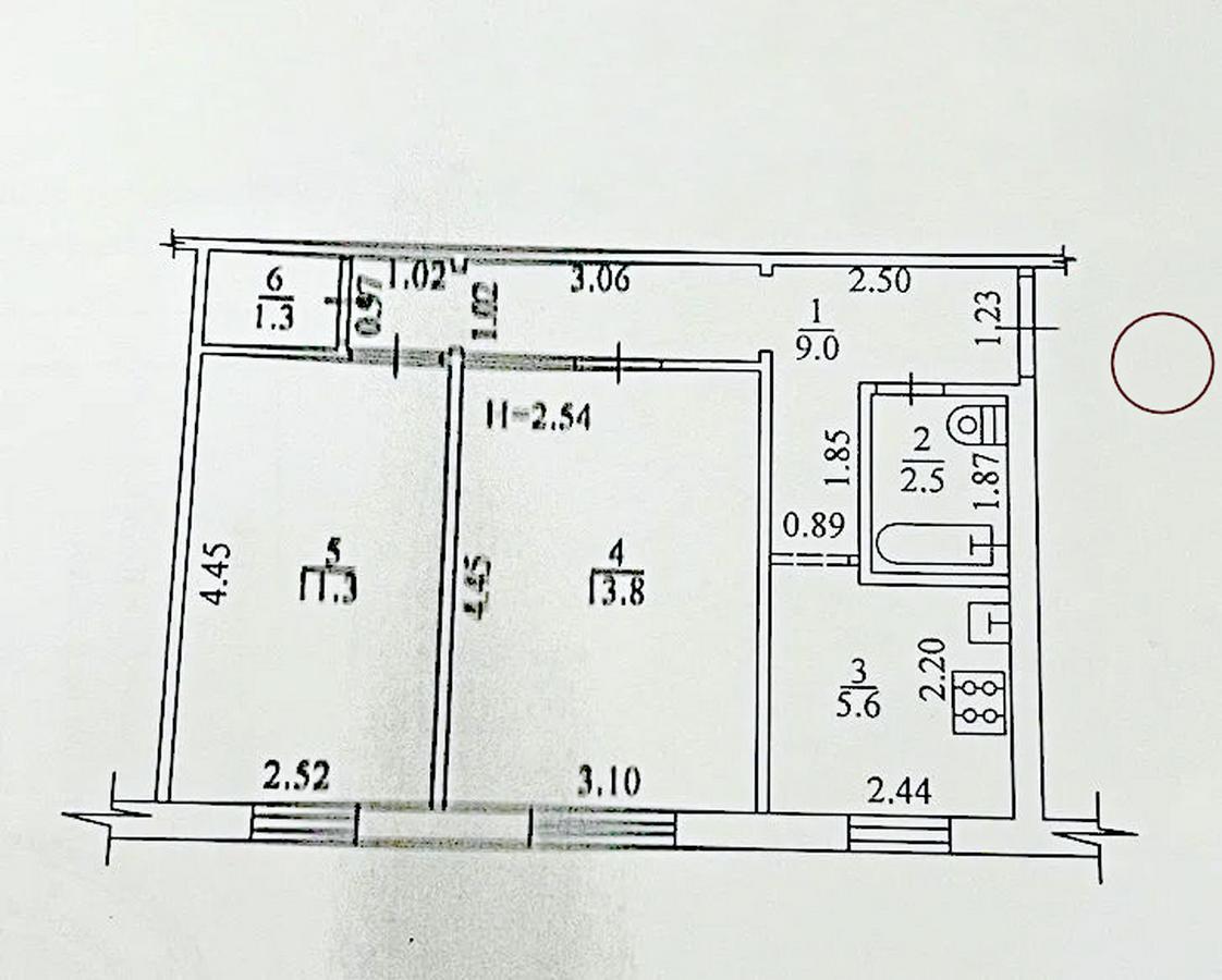
Этаж – 1/5, не угловая, общ. площадь – 45 м²., кухня – 6 м²., отдельные комнаты, кладовка, без балкона.
Жилое состояние (косметический ремонт), МП окна, новые радиаторы.

Метро «Дворец спорта» 20 минут.

Торг.
Можно приобрести по сертификату єВідновлення!
(В случае покупки недвижимости по сертификату, покупателям предоставляем консультации, сопровождение и помощь в оформлении сделок).

  • Цена: 33 000 $
  • Цена за кв. метр: ≈733 $
  • Ремонт: косметический ремонт
  • Класс жилья: эконом
  • Типовая планировка: хрущевка
  • Схема комнат: раздельная
  • Число комнат: 2 комн.
  • Площадь общая, м²: 45
  • Площадь кухни, м²: 6
  • Этаж: 1/5
  • Санузлов: 1
  • Район города: Новые дома , Дворец спорта
  • Вид недвижимости изолированная

Коммуникации

Вода:
центральная;
Газ:
есть;
Отопление:
центральное;

Параметры объекта

Материал стен:
панель;

Прочее

Дата обновления информации:
30.04.2026 07:40;

Наши сотрудники на связи

Photo

АН Valion

С удовольствием ответим на вопросы с 9-00 до 18-00 в будние дни, с 10-00 до 16-00 в субботу.

+380 (50) 450-30-82