Продажа квартиры Дворец Спорта , Каденюка ул. , 7/1, Харьков

2 комн. · 14/16 эт. · 50 м²

42 000 $
Номер: SF-3-304-931

Информация о предложении

Продам 2-комн. квартиру на Новых Домах, метро "Дворец Спорта" – 15 мин. пешком, ул. Каденюка.
єВідновлення.

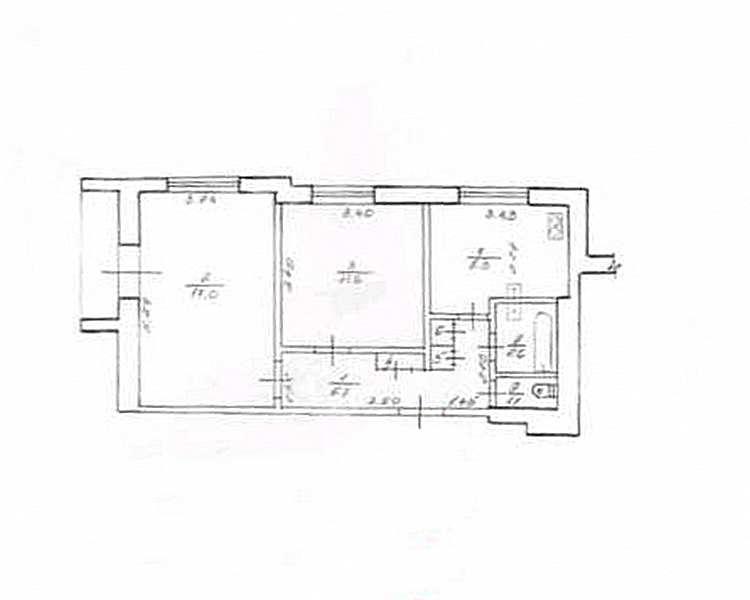
Этаж – 14/16, угловая (утеплена снаружи), общ. площадь – 50 м²., кухня – 8 м².
Хорошее жилое состояние (ремонт), мебель и техника по договоренности.

Рядом: супермаркет "АТБ", 2 детсада, школа, кинотеатр, фитнес-центр.

Можно приобрести по сертификату єВідновлення!
(В случае покупки недвижимости по сертификату, покупателям предоставляем консультации, сопровождение и помощь в оформлении сделок).

  • Цена: 42 000 $
  • Цена за кв. метр: ≈840 $
  • Ремонт: капитальный ремонт
  • Срок ремонта: более 7 лет назад
  • Класс жилья: эконом
  • Типовая планировка: улучшенная планировка
  • Схема комнат: раздельная
  • Число комнат: 2 комн.
  • Площадь общая, м²: 50
  • Площадь кухни, м²: 8
  • Этаж: 14/16
  • Санузлов: 1
  • Балконов: 1
  • Район города: Новые дома , Дворец спорта
  • Вид недвижимости изолированная

Коммуникации

Вода:
центральная;
Отопление:
центральное;

Параметры объекта

Материал стен:
панель;

Инфраструктура и сервис

Общественный транспорт:
метро - Дворец Спорта (14 мин. пешком);

Прочее

Дата обновления информации:
26.05.2026 09:46;

Наши сотрудники на связи

Photo

АН Valion

С удовольствием ответим на вопросы с 9-00 до 18-00 в будние дни, с 10-00 до 16-00 в субботу.

+380 (50) 450-30-82