Продажа дома Спиридоновская ул., Харьков

4 комн. · 160/100/58 м² · 7.50 сот.

137 000 $
Номер: SH-212-460

Информация о предложении

Продается современное здание в престижном месте.
Участок – 7,5 соток в тихом тупиковом переулке (ул. Спиридоновская), рядом с конным рынком. Непроходимая улица, спокойные и дружелюбные соседи.
Две линии метро – в пешей доступности.
Коммуникации Электричество: 380 В, 15 кВт, счетчик "день-ночь", тариф "Электроотопление". Газ на участке.
Центральная канализация и водоснабжение.
Дом Фундамент — блок 400 Стены — газоблок 400 Крыша — битумная черепица (Бельгия)
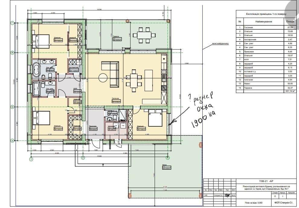
Общая жилая площадь — 160 м² Подвал — 165 м² Просторная терраса — 32 м² Большая гостиная — 58 м² 3 спальни 3 санузла Хорошие соседи.
В подарок – дизайн-проект дома и интерьера

  • Цена: 137 000 $
  • Цена за кв. метр: ≈856 $
  • Класс жилья: комфорт
  • Ремонт: без внутренних работ
  • Число комнат: 4 комн.
  • Число спален: 3
  • Площадь общая, м²: 160
  • Площадь жилая, м²: 100
  • Площадь кухни, м²: 58
  • Площадь участка, сот.: 7.50
  • Этажность: 1
  • Район города: Прилегающие к центру , Восстания площ.
  • Расположение: центр города
  • Вид недвижимости целый дом

Коммуникации

Вода:
центральная, скважина;
Газ:
есть;
Отопление:
газовое;
Канализация:
центральная;
Счетчики:
газ;

Параметры объекта

Материал стен:
газоблок;

Прочее

Дата обновления информации:
27.05.2026 17:24;

Наши сотрудники на связи

Photo

АН Valion

С удовольствием ответим на вопросы с 9-00 до 18-00 в будние дни, с 10-00 до 16-00 в субботу.

+380 (50) 450-30-82