Продажа дома Регистраторская ул., Харьков

4 комн. · 109 м² · 12 сот.

66 900 $
Номер: SH-214-943

Это предложение уже закрыто

Информация о предложении

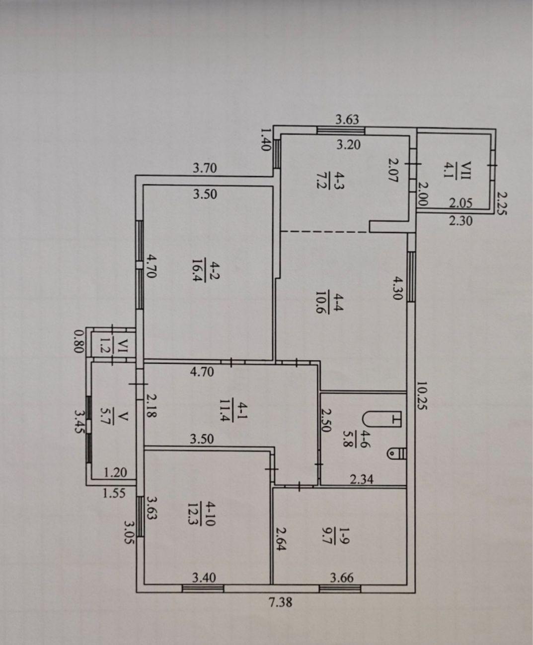
Дом 109 м2 недалеко от центра, метро Левада .
В доме четыре раздельные комнаты, очень светлые, хороший ремонт, централизованные коммуникации.
Дом утеплён, отштукатурен, крыша- битумная черепица. Отопление- газовый двух контурный котёл производства Италии, а также твердотопливный котёл. В санузле современная плитка.
Заведено електричество 380 вольт.
Участок 12 соток. Двор имеет два входа на разные улицы.
Возможен вариант продажи по сертификату.

  • Цена: 66 900 $
  • Цена за кв. метр: ≈614 $
  • Класс жилья: эконом
  • Ремонт: капитальный ремонт
  • Число комнат: 4 комн.
  • Число спален: 3
  • Площадь общая, м²: 109
  • Площадь кухни, м²: 11
  • Площадь участка, сот.: 12
  • Этажность: 1
  • Район города: Новожановское направление , Москалёвка
  • Вид недвижимости целый дом

Коммуникации

Вода:
центральная (только холодная);
Газ:
есть;
Отопление:
газовое;
Канализация:
центральная;
Счетчики:
газ;

Параметры объекта

Материал стен:
кирпич;

Прочее

Дата обновления информации:
16.03.2026 11:39;

Наши сотрудники на связи

Photo

АН Valion

С удовольствием ответим на вопросы с 9-00 до 18-00 в будние дни, с 10-00 до 16-00 в субботу.

+380 (50) 450-30-82