Продаж квартири Привокзальна вул., 30, Вінниця

1 кімн. · 6/10 пов. · 61 м²

60 500 $
Номер: SF-3-300-199

Інформація щодо пропозиції

Вашій увазі пропонується чудова велика 1-кімнатна квартира на продаж! Яку можно перепланувати під 2-х кімнатну (квадратура дозволяє). В будинку є підземний паркінг, який служить бомбосховищем.
Розташування: Вінниця, Старе місто, Привокзальна, 30.
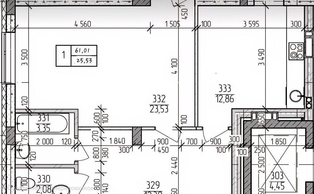
Загальна площа помешкання 61 кв.м. У квартирі роздільний санвузол. З балконом. У помешканні панорамні вікна.
Поверх: 6/10. Ліфт наявний.
Індивідуальне електричне опалення. Індивідуальні лічильники: електрика, вода. Гаряча вода бойлер.

  • Ціна: 60 500 $
  • Ціна за кв. метр: ≈992 $
  • Ремонт: без внутрішніх робіт
  • Клас житла: комфорт
  • Кількість кімнат: 1 кімн.
  • Площа загальна, м²: 61
  • Площа кухні, м²: 12.86
  • Поверх: 6/10
  • Рік будівництва: 2021-2025, новобуд
  • Санвузлів: 1
  • Балконів: 1
  • Район міста: Староміський , Старе місто
  • Вид нерухомості ізольована

Комунікації

Вода:
центральна;
Опалення:
автономне, електричне;

Параметри об’єкта

Матеріал стін:
панель;

Інше

Дата оновлення інформації:
03.04.2026 14:35;

Наші співробітники на зв’язку

Photo

АН Valion

Із задоволенням відповімо на питання з 9-00 до 18-00 у будні, з 10-00 до 16-00 у суботу.

+380 (50) 450-30-82