Продаж об'єкту сервісу Ярослава Мудрого, Михайля Семенка вул., 24, Харків

1/3 пов. · 220 м²

100 000 $
Номер: SC-219-203

Інформація щодо пропозиції

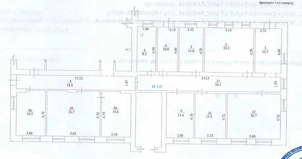
У продажу нежитлове приміщення 220 м² в тихому центрі Харкова станція метро Пушкінська (Ярослава Мудрого)

вул. Михайла Семенка, 24 (колишня Чайковська).
1-й поверх житлового будинку 1950-х років будівлі, над приміщенням - житловий фонд (2-3 поверх).

Характеристики приміщення

Загальна площа: 220 м²
Поверх: 1-й
Асфальтована парковка
Було розміщено відділення очної клініки
Планування: кілька кабінетів, коридор, санвузли (кабінетна система – зручно для медиків, косметології, офісів)
3 окремі входи – є можливість розділити на 2–3 самостійні блоки під різних орендарів
Електрика: 20 кВт
Опалення: центральне, за лічильником
Є кондиціонери

Спокійна вулиця, але при цьому центр – зручно для клієнтів та співробітників.
Поруч житловий масив, офіси, навчальні заклади – добрий потік потенційних клієнтів для медицини/послуг.

  • Ціна: 100 000 $
  • Ціна за кв. метр: ≈455 $
  • Червона лінія: так
  • Площа загальна, м²: 220
  • Поверх: 1/3
  • Рік будівництва: 1951-1970
  • Район міста: Центральні райони, Нагірний

Комунікації

Вода:
центральна;
Опалення:
автономне;
Каналізація:
центральна;

Інфраструктура та сервіс

Громадський транспорт:
метро - Ярослава Мудрого (10 хв. пішки);

Інше

Дата оновлення інформації:
12.12.2025 17:00;

Наші співробітники на зв’язку

Photo

АН Valion

Із задоволенням відповімо на питання з 9-00 до 18-00 у будні, з 10-00 до 16-00 у суботу.

+380 (50) 450-30-82