Продаж квартири Тракторобудівників просп. , 69А, Харків

3 кімн. · 7/9 пов. · 65 м²

34 000 $
Номер: SF-3-169-985

Цю пропозицію уже закрито

Інформація щодо пропозиції

Продам 3-х кімнатну квартиру на Салтівці,
за адресою Тракторобудівників 69-А
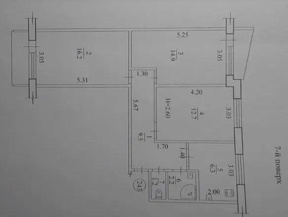
Квартира двостороння
світла, три окремі кімнати,
2 балкони,
санвузол роздільний, є невелика комора
У квартирі косметичний ремонт, МПО, житловий стан,

Квартира знаходиться не далеко від ТРК "Україна", поруч ринок, супермаркети, магазини.
Хороша транспортна розв'язка, через дорогу дитячий садок та школа. У пішій доступності парк Перемоги. Хороший тихий двір, дитячі майданчики, доглянутий під'їзд, новий ліфт.

  • Ціна: 34 000 $
  • Ціна за кв. метр: ≈523 $
  • Ремонт: косметичний ремонт
  • Клас житла: економ
  • Схема кімнат: роздільна
  • Кількість кімнат: 3 кімн.
  • Площа загальна, м²: 65
  • Площа кухні, м²: 6.30
  • Поверх: 7/9
  • Санвузлів: 1
  • Район міста: Салтівський напрямок , 605
  • Вид нерухомості ізольована

Комунікації

Вода:
центральна;
Опалення:
центральне;

Параметри об’єкта

Матеріал стін:
панель;

Інше

Дата оновлення інформації:
10.11.2025 13:39;

Наші співробітники на зв’язку

Photo

АН Valion

Із задоволенням відповімо на питання з 9-00 до 18-00 у будні, з 10-00 до 16-00 у суботу.

+380 (50) 450-30-82