Продаж квартири ЖК «Казка» , Холодна гора , Полтавський Шлях вул. , 184А, корп. 18, Харків

1 кімн. · 6/9 пов. · 40.70/18.30/11 м²

29 000 $
Номер: SF-3-173-239

Інформація щодо пропозиції

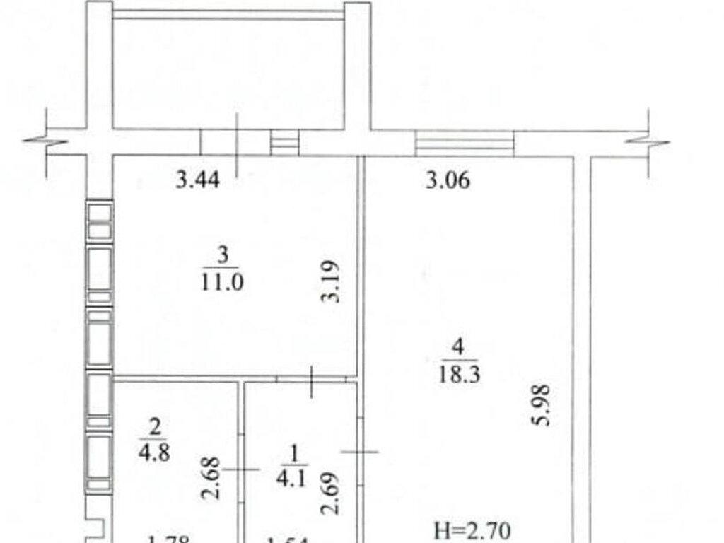
Пропонуємо до продажу 1-кімнатну квартиру у новому житловому комплексі "Казка" . Площа квартири 40.70 м², квартира без внутрішніх робіт.
Будинок 9-поверховий, квартира розташована на 6-му поверсі. Житлова площа квартири 18.30 м², кухня 11 м². Квартира економ-класу.

Не втрачайте можливість придбати ваше власне житло в новому будинку! Зателефонуйте нам для детальної консультації та організації перегляду квартири.

  • Ціна: 29 000 $
  • Ціна за кв. метр: ≈713 $
  • Ремонт: без внутрішніх робіт
  • Клас житла: економ
  • Типове планування: нестандартне планування
  • Кількість кімнат: 1 кімн.
  • Площа загальна, м²: 40.70
  • Площа житлова, м²: 18.30
  • Площа кухні, м²: 11
  • Поверх: 6/9
  • Рік будівництва: 2016-2020, новобуд
  • Санвузлів: 1
  • Балконів: 1
  • Район міста: Холодногірський напрямок , Холодна Гора (Холодногірський)
  • Розташування: спальні райони
  • Вид нерухомості ізольована

Комунікації

Вода:
центральна;
Газ:
немає;
Опалення:
центральне;
Лічильники:
холодна вода, опалення;

Параметри об’єкта

Матеріал стін:
цегла;

Інфраструктура та сервіс

Громадський транспорт:
метро - Холодна гора (15 хв. пішки, 5 хв. на транспорті);

Інше

Дата оновлення інформації:
05.05.2026 18:07;

Наші співробітники на зв’язку

Photo

АН Valion

Із задоволенням відповімо на питання з 9-00 до 18-00 у будні, з 10-00 до 16-00 у суботу.

+380 (50) 450-30-82