Продаж квартири Холодна гора, Холодногірська вул., 16, Харків

2 кімн. · 12/12 пов. · 46.60/26/6 м²

39 000 $
Номер: SF-3-180-453

Інформація щодо пропозиції

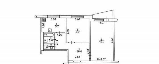
Пропонується на продаж 2-кімнатна квартира з капітальним ремонтом, 46,60 м².
Розташована в районі Холодна Гора (Холодногірський), на вулиці Холодногірська, поруч з метро Холодна Гора у місті Харкові.

Квартира знаходиться на 12 поверсі 12-поверхового будинку. Житлова площа квартири - 26 м², кухня - 6 м². Житловий будинок класу "економ".

Не втрачайте можливість придбати це комфортне житло з новим капітальним ремонтом. Телефонуйте зараз!

  • Ціна: 39 000 $
  • Ціна за кв. метр: ≈837 $
  • Ремонт: капітальний ремонт
  • Клас житла: економ
  • Типове планування: чешка
  • Схема кімнат: роздільна
  • Кількість кімнат: 2
  • Кількість спалень: 1
  • Площа загальна, м²: 46.60
  • Площа житлова, м²: 26
  • Площа кухні, м²: 6
  • Поверх: 12/12
  • Санвузлів: 1
  • Балконів: 1
  • Район міста: Холодногірський напрямок, Холодна Гора (Холодногірський)

Комунікації

Вода:
центральна;
Газ:
немає;
Опалення:
центральне;
Лічильники:
холодна вода, гаряча вода;

Параметри об’єкта

Матеріал стін:
панель;

Інфраструктура та сервіс

Громадський транспорт:
метро - Холодна гора;

Інше

Дата оновлення інформації:
29.12.2025 11:55;

Наші співробітники на зв’язку

Photo

АН Valion

Із задоволенням відповімо на питання з 9-00 до 18-00 у будні, з 10-00 до 16-00 у суботу.

+380 (50) 450-30-82