Продаж квартири Героїв Харкова просп., 131Г, Харків

2 кімн. · 4/9 пов. · 59 м²

61 000 $
Номер: SF-3-220-559

Інформація щодо пропозиції

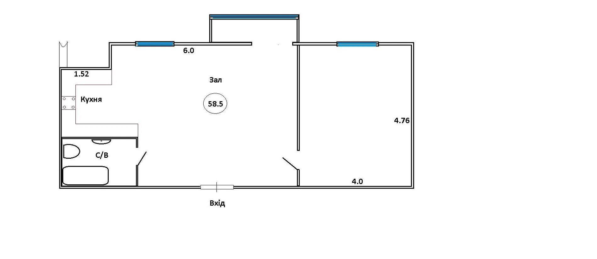
Продам 2к квартиру в новобудові в районі м.Захисників України (Кінний ринок), етаж 4/9, 58.5м.кв.

У квартирі виконано перепланування, за рахунок чого, зона кухні і зали були об'єднанні. У всій квартирі виконано якісний ремонт, в зоні зали та кухні пол оздоблено керамічною плиткою, яка клалась на основу з утепленням, стіни оздоблені веніціанською штукатуркою, стеля натяжна, в спальні стіни оздоблені обоями, в санвузлі, який сумісний, встановлено нову ванну, інстальовано унітаз та є водонагрівач.
У всій квартирі встановлені якісні енергоощадні віконні пакети, балкон утепленний, електропроводка нова, продумано різні зони світла. Встановлено лічильники води та тепла, подача тепла регулюється.
Квартира тепла, шум не відчувається, так як дім стоїть у дворі. Рядом метро, Кінний ринок, магазини, центр міста, стоянка для авто.

  • Ціна: 61 000 $
  • Ціна за кв. метр: ≈1 034 $
  • Ремонт: євроремонт
  • Клас житла: економ
  • Типове планування: нестандартне планування
  • Кількість кімнат: 2
  • Площа загальна, м²: 59
  • Площа кухні, м²: 10
  • Поверх: 4/9
  • Рік будівництва: 2021-2025, новобуд
  • Район міста: Прилеглі до центру, Повстання площ.
  • Розташування: центр міста

Комунікації

Вода:
центральна;
Опалення:
центральне;

Параметри об’єкта

Матеріал стін:
цегла;

Інше

Дата оновлення інформації:
08.11.2025 15:54;

Наші співробітники на зв’язку

Photo

АН Valion

Із задоволенням відповімо на питання з 9-00 до 18-00 у будні, з 10-00 до 16-00 у суботу.

+380 (50) 450-30-82