Продаж квартири Котляревського вул., 10А, Ужгород

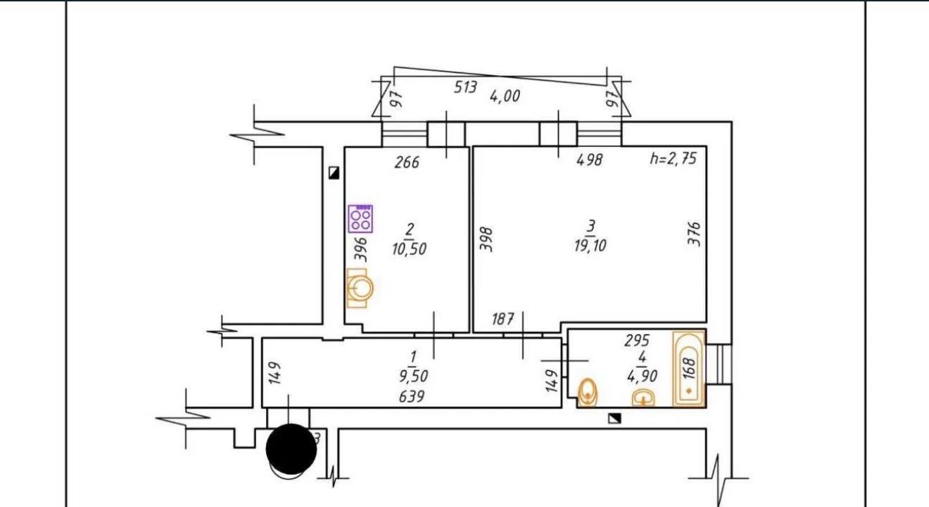
1 кімн. · 1/5 пов. · 46/19/12 м²

69 500 $
Номер: SF-3-257-273

Цю пропозицію уже закрито

Інформація щодо пропозиції

До вашої уваги пропонуємо квартиру на першому поверсі, площею 46 м.кв. Всередині зроблено євроремонт, залишається вся мебель та техніка як на фото.
Будинок цегляний, утеплений, новобудова, ОСББ, дитячий майданчик, зручна парковка
Зручне планування: просторий коридор, суміжний санвузол, кухня з виходом на закриту лоджію та спальня яка також має вихід на закриту лоджію.

Опалення автономне водяне газове + тепла підлога на (кухні та лоджії), + додатково встановлений інверторний кондиціонер.

Хороша локація: поряд знаходиться зупинка, садочок, парк, 5 хв їзди до площі Корятовича, та багато іншого.

Дана пропозиція добре підходить як для проживання так і для оренди.

  • Ціна: 69 500 $
  • Ціна за кв. метр: ≈1 511 $
  • Ремонт: капітальний ремонт
  • Клас житла: комфорт
  • Схема кімнат: роздільна
  • Кількість кімнат: 1 кімн.
  • Кількість спалень: 1
  • Площа загальна, м²: 46
  • Площа житлова, м²: 19
  • Площа кухні, м²: 12
  • Поверх: 1/5
  • Рік будівництва: 2021-2025, новобуд
  • Санвузлів: 1
  • Балконів: 1
  • Район міста: Шахта
  • Вид нерухомості ізольована

Комунікації

Вода:
центральна;
Газ:
є;
Опалення:
автономне, газове;

Інше

Дата оновлення інформації:
09.03.2026 13:10;

Наші співробітники на зв’язку

Photo

АН Valion

Із задоволенням відповімо на питання з 9-00 до 18-00 у будні, з 10-00 до 16-00 у суботу.

+380 (50) 450-30-82