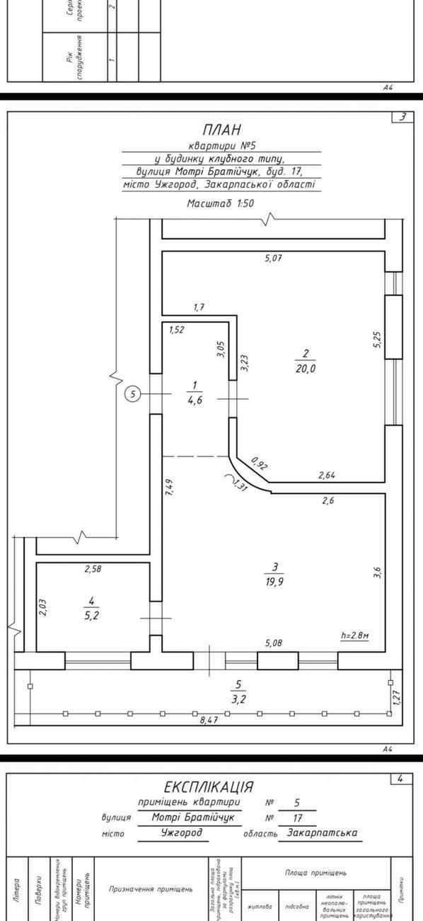
Продаж квартири Мотрі Братійчук вул., 17, Ужгород

1 кімн. · 2/3 пов. · 53 м²

57 000 $
Номер: SF-3-269-021

Цю пропозицію уже закрито

Інформація щодо пропозиції

Продається 1.5 квартира в триповерховому клубному будиночку. Тепла підлога. Квартира знаходиться на другому поверсі. Гарний спокійний район. Будинок зданий в експлуатацію та готовий до нових власників.

  • Ціна: 57 000 $
  • Ціна за кв. метр: ≈1 075 $
  • Ремонт: без ремонту
  • Клас житла: комфорт
  • Типове планування: нестандартне планування
  • Кількість кімнат: 1 кімн.
  • Площа загальна, м²: 53
  • Площа кухні, м²: 25
  • Поверх: 2/3
  • Санвузлів: 1
  • Район міста: П'яний базар
  • Вид нерухомості ізольована

Комунікації

Вода:
центральна;
Газ:
немає;
Опалення:
автономне, електричне;
Лічильники:
холодна вода;

Параметри об’єкта

Матеріал стін:
цегла;

Інше

Дата оновлення інформації:
30.03.2026 21:35;

Наші співробітники на зв’язку

Photo

АН Valion

Із задоволенням відповімо на питання з 9-00 до 18-00 у будні, з 10-00 до 16-00 у суботу.

+380 (50) 450-30-82