Продаж квартири Мукачівська вул., 44, Ужгород

2 кімн. · 5/7 пов. · 60.18 м²

79 400 $
Без нашої комісії
Номер: SF-3-270-852

Інформація щодо пропозиції

Продається 2-кімнатна квартира в новобудові ЖК 44 AVENUE. Без комісії від покупця.
Висока якість будівництва монолітно-каркасна технологія з використанням червоної цегли , вентильований фасад.
Автономність квартири обладнані індивідуальними електричними котлами. Закритий озеленений внутрішній двір з пішохідним простором.
Можливий продаж по програмі єВідновлення
В продажу є квартири з різними плануванням та площею.

За детальною інформацією та для запису на показ звертайтесь за телефоном. Організую перегляд у зручний для вас час!

  • Ціна: 79 400 $
  • Ціна за кв. метр: ≈1 319 $
  • Ремонт: без ремонту
  • Клас житла: комфорт
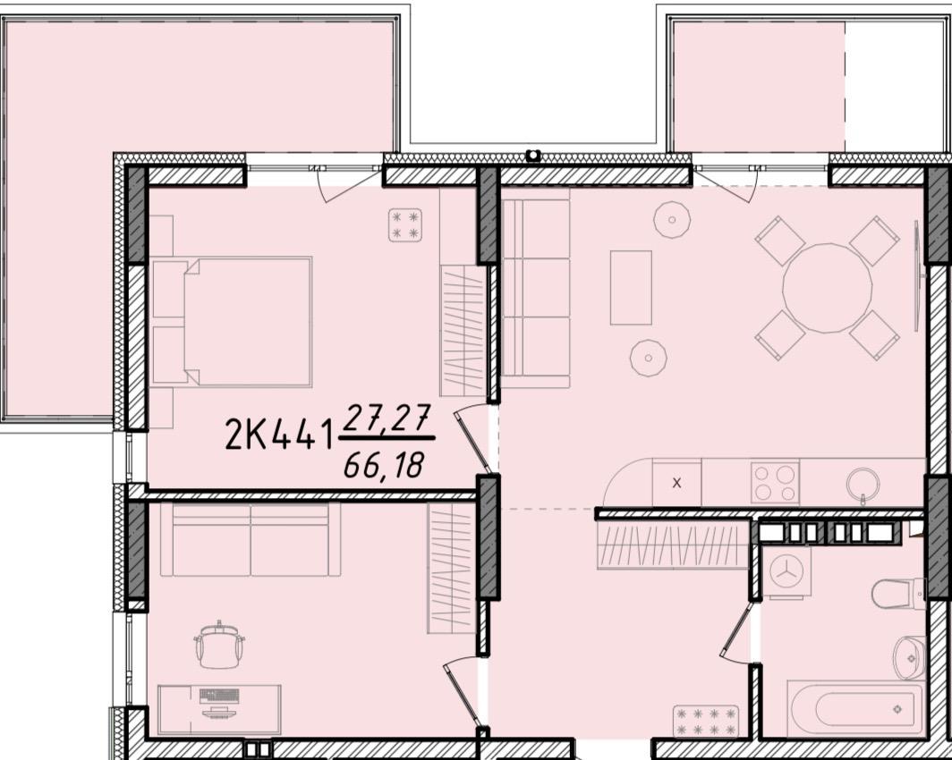
  • Типове планування: нестандартне планування
  • Схема кімнат: роздільна
  • Кількість кімнат: 2 кімн.
  • Кількість спалень: 2
  • Площа загальна, м²: 60.18
  • Площа кухні, м²: 20.70
  • Поверх: 5/7
  • Рік будівництва: 2021-2025, новобуд
  • Санвузлів: 1
  • Балконів: 2
  • Район міста: Вербник
  • Вид нерухомості ізольована

Комунікації

Вода:
центральна;
Газ:
немає;
Опалення:
центральне, електричне;

Параметри об’єкта

Ліфт:
пасажирський;

Інше

Дата оновлення інформації:
28.01.2026 14:27;

Наші співробітники на зв’язку

Photo

АН Valion

Із задоволенням відповімо на питання з 9-00 до 18-00 у будні, з 10-00 до 16-00 у суботу.

+380 (50) 450-30-82