Продаж квартири ЖК For Life , Баб'яка вул., 60, Ужгород

2 кімн. · 5/10 пов. · 74.62/31.03/24.40 м²

1 200 $/м²
Номер: SF-3-270-887

Інформація щодо пропозиції

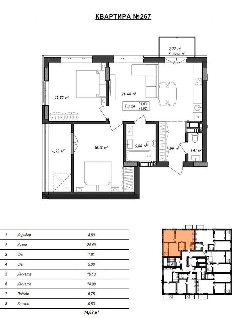
Продається двокімнатну квартиру в стильному ЖК за адресою Миколи Баб'яка 60 (навпроти Нової Лінії).
Квартира розташована на 5-му поверсі з 9-ти.
Має 2 окремі кімнати, простору кухню студію та 2 санвузли, а також закриту лоджію та балкон.
В комплектацію до квартири також входить: стяжка,
штукатурка, електричний котел та радіатори.
Здача в експлуатацію даного ЖК - кінець 2026 року.
Система оформлення - купівля\продаж МОН.

  • Ціна: ≈89 544 $
  • Ціна за кв. метр: 1 200 $
  • Ремонт: без внутрішніх робіт
  • Клас житла: бізнес
  • Типове планування: нестандартне планування
  • Кількість кімнат: 2 кімн.
  • Кількість спалень: 1
  • Площа загальна, м²: 74.62
  • Площа житлова, м²: 31.03
  • Площа кухні, м²: 24.40
  • Поверх: 5/10
  • Рік будівництва: після 2025, новобуд
  • Санвузлів: 2
  • Балконів: 2
  • Район міста: Боздош
  • Вид нерухомості ізольована

Комунікації

Вода:
центральна;
Опалення:
автономне;
Лічильники:
холодна вода;

Параметри об’єкта

Матеріал стін:
цегла;

Інше

Дата оновлення інформації:
04.05.2026 11:30;

Наші співробітники на зв’язку

Photo

АН Valion

Із задоволенням відповімо на питання з 9-00 до 18-00 у будні, з 10-00 до 16-00 у суботу.

+380 (50) 450-30-82