Продаж квартири ЖК «Park Land» , Легоцького вул. , 33, Ужгород

3 кімн. · 9/9 пов. · 118 м²

1 550 $/м²
Номер: SF-3-291-304

Інформація щодо пропозиції

Продається квартира в новому житловому комплексі "Park Land" комфорт-класу.
Дуже зручне розташування ЖК, оскільки в безпосередній близькості від нього є: навчальні заклади, школа, дитячий садок, лікарня, тц, ринок, магазини, паркові зони, транспортна розв'язка, наземний паркінг.
Квартира простора, ідеально підійде для великої сімії.
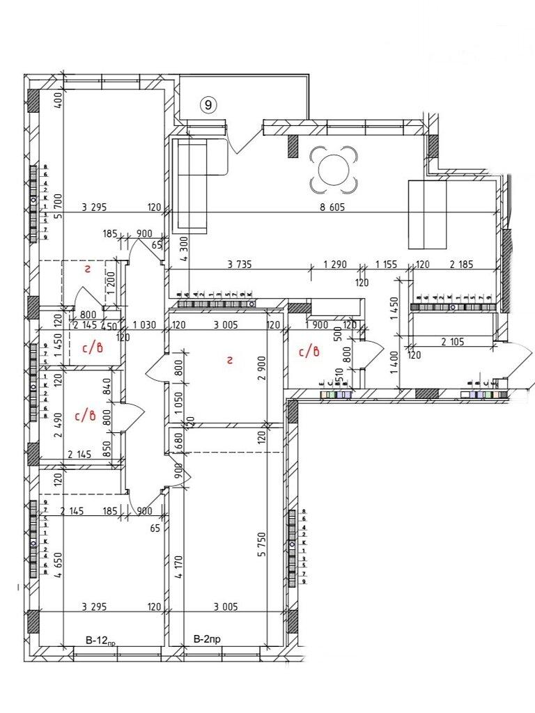
3 окремі кімнати, загальна площа 118 кв. метрів, без внутрішніх ремонтних робіт.
Не втрачайте можливості стати власником цієї просторої квартири в новобудові! Телефонуйте!

  • Ціна: ≈182 900 $
  • Ціна за кв. метр: 1 550 $
  • Ремонт: без внутрішніх робіт
  • Клас житла: комфорт
  • Типове планування: нестандартне планування
  • Кількість кімнат: 3 кімн.
  • Кількість спалень: 2
  • Площа загальна, м²: 118
  • Площа кухні, м²: 21
  • Поверх: 9/9
  • Рік будівництва: 2021-2025, новобуд
  • Санвузлів: 1
  • Балконів: 1
  • Район міста: Новий
  • Вид нерухомості ізольована

Комунікації

Вода:
центральна;
Опалення:
автономне, електричне;
Лічильники:
холодна вода;

Параметри об’єкта

Матеріал стін:
моноліто-каркас;

Інше

Дата оновлення інформації:
13.03.2026 20:49;

Наші співробітники на зв’язку

Photo

АН Valion

Із задоволенням відповімо на питання з 9-00 до 18-00 у будні, з 10-00 до 16-00 у суботу.

+380 (50) 450-30-82