Продаж квартири ЖР Княгинин , Княгинин вул. , 44, Івано-Франківськ

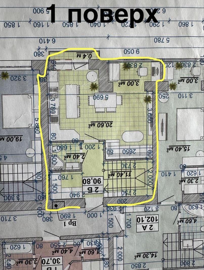
2 кімн. · 12/14 пов. · 90.80 м²

63 000 $
Номер: SF-3-299-604

Інформація щодо пропозиції

Продається квартира в новобудові ЖР Княгинин, Івано-Франківськ. 2 кімнати, кухня-студія 20.60 м², площа квартири 90.80 м², поверх 12 із 14.
Без внутрішніх робіт.
Квартира має нестандартне планування.
Розташована в самому центрі міста.
Це житло комфорт-класу.
Не упустіть можливість придбати цю затишну квартиру в новому будинку!
Телефонуйте!

  • Ціна: 63 000 $
  • Ціна за кв. метр: ≈694 $
  • Ремонт: без внутрішніх робіт
  • Клас житла: комфорт
  • Типове планування: нестандартне планування
  • Кількість кімнат: 2 кімн.
  • Кількість спалень: 1
  • Площа загальна, м²: 90.80
  • Площа кухні, м²: 20.60
  • Поверх: 12/14
  • Рік будівництва: 2021-2025, новобуд
  • Санвузлів: 1
  • Район міста: Княгинин
  • Розташування: центр міста
  • Вид нерухомості ізольована

Комунікації

Вода:
центральна;
Газ:
є;
Опалення:
автономне, газове;

Інше

Дата оновлення інформації:
27.05.2026 19:29;

Наші співробітники на зв’язку

Photo

АН Valion

Із задоволенням відповімо на питання з 9-00 до 18-00 у будні, з 10-00 до 16-00 у суботу.

+380 (50) 450-30-82