Продаж квартири Капушанська вул., 145Е, Ужгород

2 кімн. · 4/12 пов. · 58.60 м²

1 050 $/м²
Номер: SF-3-311-876

Інформація щодо пропозиції

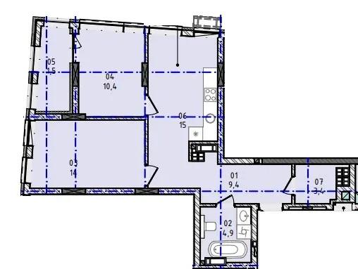
Пропонується 2-кімнатна квартира площею 58,6м² на 4 поверсі сучасної новобудови.
Зручне планування:
-- простора кухня-вітальня 15 м²
-- дві окремі кімнати
-- санвузол
-- лоджія
-- функціональний коридор

Опалення автономне - тепловий лічильник та електрика в квартирі.

Квартира світла, з великими вікнами та раціональним використанням простору. Підійде як для власного проживання, так і для інвестиції.

До квартири також можна придбати паркомісце на підземному паркінгу

  • Ціна: ≈61 530 $
  • Ціна за кв. метр: 1 050 $
  • Ремонт: без внутрішніх робіт
  • Клас житла: економ
  • Кількість кімнат: 2 кімн.
  • Площа загальна, м²: 58.60
  • Площа кухні, м²: 15
  • Поверх: 4/12
  • Рік будівництва: 2021-2025, новобуд
  • Район міста: Новий
  • Вид нерухомості ізольована

Комунікації

Вода:
центральна;
Опалення:
автономне;

Інше

Дата оновлення інформації:
30.04.2026 17:34;

Наші співробітники на зв’язку

Photo

АН Valion

Із задоволенням відповімо на питання з 9-00 до 18-00 у будні, з 10-00 до 16-00 у суботу.

+380 (50) 450-30-82